2022.04.29
Essay

輝く都市をきみは見たか

未完の家、1992

篠原一男(篠原一男アトリエ)

*本記事は『新建築住宅特集』1993年1月号に掲載されたものです。

「未完の家」の1993年

1992年3月初め、「未完の家」(1970年)のH氏から、敷地西側に独立した住宅を新たに建てたい、そして、今の住宅は子供たちの家族を含めたゲストのために使うという電話を受けた。敷地と建物との関係は十分に知っているから、「未完の家」1992年計画はそのときスタートした。最初の建物の設計は1968年10月と雑誌に記録されているから、4世紀半の時間がこのふたつの間にあるfig.1fig.2fig.3
その後の設計条件の打合せを要約すると、H氏夫妻の生活空間としてだけ機能すればよいこと、特別事項として、H氏は特徴のある暖房システム─最近それに冷房システムを付加した─の製造会社を経営しているが、その冷暖房のシステムの特徴を十分に使った計画であること、それに関連して、これからの熱源問題のスタディのため太陽電池をできるだけ広く設置すること、さらにそれに関して、コンクリート造の熱に対しての特性を生かして、外側断熱を十分に施し、住宅全体を蓄熱槽と考えるから、当然外壁面ガラスはすべて2重にするというような事項であった。 どのような技術的な条件でも、技術だけの問題に限れば、巨大な建物で成立することが小空間で問題になることはない、条件に工費が対応していれば。それともうひとつ、住宅という特別な建築領域固有の諸問題との間で望ましい結果が得られるか、技術よりもこの点に問題が集中することになる。

激動した1969年に

「未完の家」の設計はスチューデント・パワーが世界中の大学を覆った最終期と重なっていた。私がいた大学が閉鎖された一時期、H氏の配慮による臨時の研究スペースで、私たちは作業を続けた。一方、社会の大勢は翌年の大阪万国博覧会に向けて、高度工業社会のもつ機能を全開して動いていた。
私は建築的個人史の変動を試みた。日本建築の伝統的構成─そのコンセプトと表現フレーム─からの離陸を、その直前のいくつかの仕事を仕上げた過程で私は意識していた。モダニズムの横断─いうまでもなく私固有の方法で─のプログラムが漠然と浮かんでいた。 そしてある夜だった。〈道路からは目立たない外観にしてほしい〉というH氏夫人の要請に適合する外形輪郭、2層空間を覆う大きな切妻屋根が道路に対して平入りになった計画を提示したときだった。その正確な言葉は忘れたが、深い軒の出をもった“こういう情感をもつ形でなくてよい"という反応が返ってきた。平面はすでに実現案がほとんど成立していた。この瞬間に、私の“第2の様式"が浮上した。 キューブが採用され、すでにまとまっていた内部の“亀裂の空間"の全体を覆った。しかし、意識と手は必ずしも連動しない。完全なキューブの輪郭は自己確認を受け付けない。キューブの隅が切り取られ、日本的な表情ではないにしても、自己の形であるという認識がなされ、完全に“乾いたキューブ"は見送られた。しかし、亀裂の空間と名付けた個人的な形のフレームは原型と呼び得るものが成立した。 そのキューブをふたつの数字によって置換した。 4半世紀後、そのキューブと私は向き合って隣接する住宅をつくることになった。「未完の家」の直後の「直方体の森」(『新建築』7202)のようなドライなキューブならばと不平をいいながら作業をした。キューブはその横に密着した他のキューブを許容し、その連続的な展開は集落を、あるいは都市を成立させると私は書いたことがある(「住宅論」『新建築』7202)。1989年、私は「未完の家」から数えて2、3番目になる「同相の谷」(『新建築』7202)の増築の計画をつくったfig.4。これも20年ほどの時間をおいた1990年のことであり、そしてこれも隣接する。しかし自由な形を選んだ。鉄骨造のその小空間の工費見積りは、いわゆるバブルの最盛期に出会い、調整がつかずに、挫折した。 完全キューブに踏み切れなかったこの外形から、ふたつの数値──屋根の最高点すなわちキューブの高さと斜面の最下点を取り出し、それを新しい屋根の最高点と最下点とした。 太陽電池は今までの住宅の屋根(11m×11mの輪郭)の上に水平に設置する予定である。中央のスカイライト部分は避ける。これで新旧ふたつの生活空間をまかなう。イメージして実現しなかったキューブの輪郭が、長い時間が経って空中に画かれるかもしれない。

開いた壁構造

鉄筋コンクリート構造の小さな空間でのフレーム(ラーメン)構造では、木造建築の柱梁のもつデリケートさを期待すべくもない。日本の伝統との関係を主題にしていた私の“第1の様式"の時期に、コンクリート造が選ばれたときは壁構造を採用した。しかし、そこにはまた別の困難な問題、例えば日本の空間が壁構造で成立し得るかという難問が現れる。“第2の様式"としてキューブを選んだとき、私はこの問題から解放された。それはたかだか4、5年間であった。そして私のこの“モダニズムの横断"の終了後は、私は小さな住宅でもためらいなくフレーム構造を採用した。しかし、その場合でもそれぞれ特徴をもった形を使って、一般的なフレーム構造から離れている。「野生の機械」などという、名称それ自体も乱暴なコンセプトと連動した「上原通りの住宅」(『新建築』7701)がその“第3の様式"の最初の時期に当たる。今回使われたのは壁構造である。構造部材がつくる型としては「K2ビルディング」(『新建築』9005)南面のゆるやかな曲面に使った鉄骨鉄筋コンクリートの斜柱、あるいは「熊本北警察署」(『新建築』9101)の正面逆ピラミッド空間の有効な支持材としての鉄骨造の斜柱と考えが近い。フレーム構造と同質の“開いた壁構造"の試みである。

3層のワン・ルーム

内部構成は完全に“開いたシステム"である。浴室と納戸を除いて、3層がワン・ルームである。地下室の東南隅天丼は三角形に切り取られているから、1階の居間と直接連結されている。2階の寝室も、1階の居間に向かって完全に開放─ガラスの壁もない─されているから、3層が連結されたfig.5fig.6fig.7fig.8fig.9fig.10。夫婦のための専有空間という条件では一般にこれは成立するが、冬の暖房・夏の冷房で一般に支障が起こる。ここでは放熱器に、一般よりも冬は低い温水、夏は高い冷水を通して、穏やかな空気調節を計画している。問題はその放熱器と、住宅の生活ディテールの組合せに集約されるであろう。なお、「未完の家」の場合には、H氏の会社の当時の暖房システムの実験ではなく、別の方法を試みた。“亀裂の空間"の中央部を空調チャンバーとして、半地下の機械室から冷暖気をそこに吹き出し、そこからその周辺に配置された個別の部屋に換気扇で取り入れるシステムである。

「象徴空間をこえて」 1971年

「未完の家」の工事の最終期には、ひとつの“深刻な事態"が進行していた。工事現場の様相がH氏が考えていたものと相違して、それについての不信感が危険になった。H氏のような工場経営を通して技術が理解されている場合には、住宅のような小規模工事現場の様相は工場生産よりも農業的現場に近い。それと多分、住宅のデザインそのものについても不安が感じられるようになったからであろう。家具までデザインあるいは選択するという私の方針は成立しない事態で竣工を迎えた。未完のキューブというコンセプチュアルな問題とこの現実的なそれが重なって“亀裂の空間"と呼んだ中央の小さな場所だけを記録し、「未完の家」という名称が与えられ、雑誌に発表した(『新建築』7101)。幸い編集部の配慮を得、“虚構は美しく"記録できた。
ちなみに私は“虚構を美しく演出し給え"という見出しをもつ文章をそれ以前に発表している(「設計の主体性」『建築』1964年4月号/『住宅論』SD選書に収録)。なお、この“虚構の空間"は評論家・多木浩二の写真の協力があって実現したことも付記しよう。彼は「続・異端の空間」という論文を寄せた。あるインフォーマルな会合のとき、20年後の今“異端"はどのような意味になるだろうかと私は彼に問うた。 「深い谷間と強い光を与えられた真っ白な垂直空間との合成空間が建築家としての私の仕事の領域であって、それ以外の日常的な部分は、例えばこれから企業化にされるに違いない性能の確かな空間ユニットを必要に応じて取り付けあるいは取りはずすということで住宅の全体とすることが可能ではなかろうか。(中略)強い精神性が表現された思想の空間とよぶ部分と、技術化を最大限に利用した日常部分との結合がそこに考えられないだろうか。亀裂は亀裂のままそこに存在するような。」(「象徴空間をこえて」『新建築』7101) 今回の私の文章をまとめるために、編集部と予備的に会話が行われ、まとめられた概要に編集部が付加した、私のかつての文章からの引用のひとつである。このときの副題は「原空間のひとつとしての機能空間序説」である。日本のモダニズムが大阪万博後に移行するであろう事態を予感して、私はその点で「私のモダニズム」の提起を行った。思想の空間を中核として、部品空間における新陳代謝の支配を許容するシステムを画いた。日本的な表情からは自由になっているが、思想の空間そのものが象徴空間のひとつの様態である以上、まだ十分な分離と離陸は実現していなかった。 この新しい計画の浴室はどのような製品、例えばルイ王朝風のバスタブであってもよいとH氏に伝達済みである。またH氏は、建築家の個別なデザインによる台所についても不信を表明しているので、例えば機能的な外国メーカーのデザイナーによる、その製品を保った台所にすることも了解事項になっている。しかし、3層ワンルームでの台所であるから、無条件的な了解ではなく、適度の私の拒否権が含まれている。引用文に出ていたような、思想の空間周辺のメタボリズム・システムではないが、ひとつの中性的空間の中に、原則的に自由に採用される部品メタボリズムである。 新しい住宅が竣工してH氏夫婦が移動した後、「未完の家」の補修が行われる。もし、そのとき原型にいったん戻る機会がつくられるならば、25年後の“新規発表"を併せて行う予定である。しかし、今回の新しい住宅それ自体が「続・未完の家」になる可能性も十分に存在しているので、その実現の確実な保証は今のところない。

都市は輝いていた 1992年秋

ケンブリッジのH大学とモントリオール・CCAでの公開講義が終了の後は、シカゴ経由で帰国する予定だった。カナダへは初めての旅行だった。モントリオールのフランス系都市を、あまり時間がなかったが、私は気ままによく歩いた。ところどころ、楽しさというより高揚した気分というほうが適切な都市の立振舞いとの出会いを私はもった。ときどき立ち止まって歩いてきた方を振り返った。振り向いた対象は、いわゆるポスト・モダンの高層の物がほとんどだった。意識過剰なポスト・モダンではなく、むしろレイト・モダンと呼んだほうが似合っている。
ここも2泊でシカゴ空港内ホテルへ向かう予定だった。フライト・スケジュールを見ると、その飛行機はトロントでいったん止まってシカゴへ出ることを知って、急きょ出発少し前に、トロント1泊を加えた。モントリオールからの配慮で、評論家と建築家たちによる適切な案内を得て、24時間滞在だったが、この都市の概略をつかんだ。シカゴに似て、しかしシカゴのようなハードエッジの強さを放つ都市ではなく、建築の表層が穏やかに空中に軽く固定されている。時間をもっと取らなかったカナダ滞在を少し残念に思いながら、ホテル前に来る空港行リムジンを待っていた。10月下旬、日曜の午後5時に近かった。すぐ間近に建っているゴールド色のミラーガラスの高層建物の夕日の輝きを私は見ていた。タクシーが止まり、そして、ハイウェイをしばらく走って、私はふと、後部窓から風景を見るため体の向きを変えた。考えてもいなかった“輝く都市"が窓枠いっぱいに追っていた。広大な土地を覆う、限りなく晴れて、ほとんど透明な黒になった空が、金色、銀色、中には黒色の、見事に輝いて互いにぴったりと寄り添った建築の立面群の輪郭を、くっきりと限界していた。都市が無音の壮大な合唱をする、“輝く都市"をきみは見たか。 「いくつかの主題を私はできるだけ論理的に説明してみたいと努力してきた。しかし、いままでのどのひとつの問題も切り離された独立の問題ではなく、すべてからみ合い、葛藤し合いながら動いていく問題なのだと思っている。(中略)いま私を動かしているものが混沌たる衝動である以上、…私の手には負えない。衝動とは、いうまでもなく、激しく動きつつあるこの世界に対しての、住宅というこの小さな空間に私の全存在を賭けての対応そのものの表現であるからだ。」(「象徴空間をこえて」『新建築』7101)これも編集部が今回、私の古い文章から引用したものだが、私のことばが今重い。そのときから2、3年後私は初めての外国旅行をした。リスボンで、カサブランカで出会った都市の断層は、住宅についてのこのような表明と共振していた。しかし、1992年秋の“輝く都市"とこの文章との共振はスムーズにはいかない。 住宅についての意識が変わったとしても、問題意識の放棄を意味しない。1980年以降、「日本浮世絵博物館」(『新建築』8210)─これは今、10年後の新計画を終了した─等の非住宅的対象との直接的関わりをもちはじめたことが住宅との関係の様相を変えた。事物のゆらぎのようなレベルでの、“1992年秋の都市"についてのまとめはまだできあがっていないが、例えばそのひとつ、そこに熟成したモダニズム空間の中のヒューマンなスケールを私は見た。 6m×6mの平面に、厳格な方形屋根をのせて、その輪郭からのはみ出しに神経を使い続けていた自己と、それとまったく対極の、東京・渋谷駅周辺の雑踏の中に日本の都市の未来の快楽、“カオスの美"(『住宅建築』紀伊国屋新書/1964年)を見つけた自己とは同一であった。 とすれば、今、開いた壁構造の小さな空間と、1992年10月25日午後5時に浮上した“輝く都市"とは、30年前のような補完関係ではなく、直接の共振関係で結合されている。ふたつの住宅を密着させたとき、幸運にも条件に適合すれば、都市への小さな、しかし、まぎれもなく確実な第1歩になる。互いの間に無粋な隙間など置かないで、しかもシャイな紳士や淑女のように軽やかな色気に包まれて立ち振舞っていた、そのスケールのよさに私は少し酔った。 編集部によるもうひとつ残った引用をここに取り出し、この文章の結びにしよう。これも使ったことがあり、引用されたこともある、少し派手なことば“全面戦争"に入り込むことを覚悟した「上原通りの住宅」に添えた「第3の様式」(『新建築』7701)の結びでもある。「ひとつの新しい作品をつくることは、前方の未知の空間のなかへ身を移し、それを自分のものとして獲得するのが直接の目的だが、しかしそれと同時に、すでにつくられ、過ぎ去ってきた私の空間へ向かって、それらを孤立させたり無化させないために、新しく到達した地点から新しい養分をたとえわずかでも送り返す作業でもあると私は考えてきた。(中略)ひとつの様式を持続し洗練させる方向を選ぼうと、あるいは、その様式の自律的な運動に身をゆだねながら、様式の転換を通して空間をつくっていく方向を選ぼうと、過ぎてきた空間との連絡を断つわけにはいかない。」

(初出:『新建築住宅特集』9301)

篠原一男

1925年静岡県生まれ/1953年東京工業大学卒業のち助手、助教授、教授/1986年同大学名誉教授、篠原一男アトリエ設立/2006年逝去

    新建築
    篠原一男

    RELATED SERVICES

    西より見る。/模型撮影:新建築社写真部

    南より俯瞰する。/模型撮影:新建築社写真部

    東より見る。/模型撮影:新建築社写真部

    北側外観。/模型撮影:新建築社写真部

    南東より見る。/模型撮影:新建築社写真部

    「同相の谷 (1970年)」 増築計画 (1990年)南立面。/提供:篠原一男アトリエ

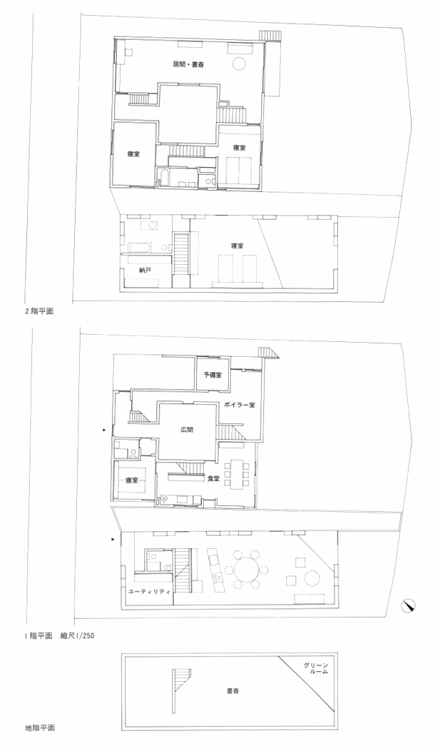
    地階平面図、1階平面、2階平面。/提供:篠原一男アトリエ

    断面。/提供:篠原一男アトリエ

    東より見る。既存建物との調和。/模型撮影:新建築社写真部

    左は北立面、右は西立面。/提供:篠原一男アトリエ

    西より見る。/模型撮影:新建築社写真部

    南より俯瞰する。/模型撮影:新建築社写真部

    東より見る。/模型撮影:新建築社写真部

    北側外観。/模型撮影:新建築社写真部

    南東より見る。/模型撮影:新建築社写真部

    「同相の谷 (1970年)」 増築計画 (1990年)南立面。/提供:篠原一男アトリエ

    地階平面図、1階平面、2階平面。/提供:篠原一男アトリエ

    断面。/提供:篠原一男アトリエ

    東より見る。既存建物との調和。/模型撮影:新建築社写真部

    左は北立面、右は西立面。/提供:篠原一男アトリエ

    fig. 10

    fig. 1 (拡大)

    fig. 2