物件掲載企業数:299|賃貸物件:3,617件|売買物件:3,316件|今週の登録物件:277
閲覧中のブラウザ(インターネットエクスプローラー)は非推奨ブラウザです。
物件が正しく表示されなかったり、正しく検索されない場合があります。最新のブラウザ(Google Chrome・Edgeなど)にてご利用お願いいたします。
  

新潟県上越市大町3丁目1-13 中古一戸建て 7LDK 15,500,000円の物件情報

東南の角地で生活便利な病院や銀行商店街がごく近くにある好立地物件です

物件名/所在地 詳細 価格
大町3売家
新潟県上越市大町3丁目1-13
  • 土地面積
    :171.2㎡ /51.78坪
  • 建物面積
    :394.64㎡ /119.37坪
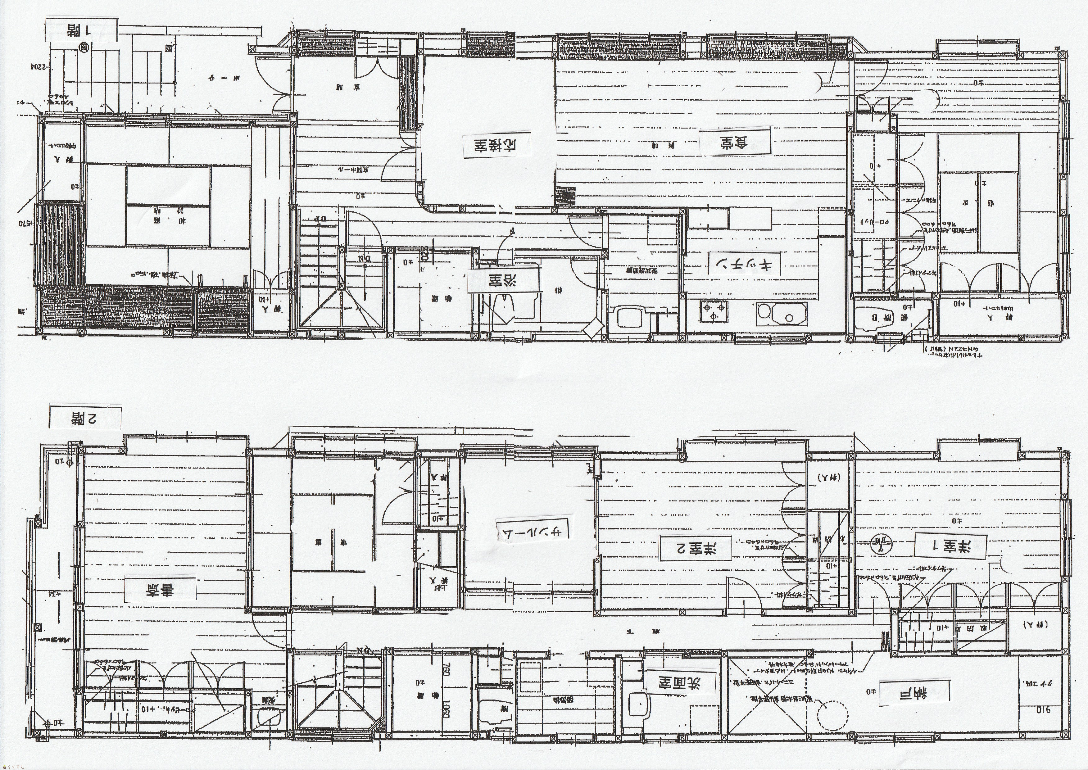
  • 間取り
    :7LDK
  • 築年月
    :1993年10月
15,500,000
  • 大町3売家
    有限会社 春日土地建物
  • この物件を問い合わせる/無料
  • TEL: 0120-178-153

物件画像

外観 間取り
物件画像
※画像クリックで拡大表示
外観
物件画像
※画像クリックで拡大表示
間取り
詳細画像


物件概要

外壁や屋根リフォーム済で室内は各部屋ゆとりがあり。高品質な建物です。
物件コード 00237-200091
物件名 大町3売家
交通 駅:妙高はねうまライン 高田駅から徒歩8分
物件所在地 新潟県上越市大町3丁目1-13
物件種別 中古一戸建て
構造 木造鉄筋コン 階建 地上3階建
建ぺい率/容積率 80%/500%
建物面積 1階 127.86㎡/ 2階 132.25㎡/ 3階 134.53㎡/ 計 394.64㎡ /119.37坪
土地面積 171.2㎡ /51.78坪
築年月 1993年10月(築32年)
入居(引き渡し)時期 10月頃引渡し可
用途地域 商業地域 地目 宅地
都市計画 市街化区域 学校区 大町小学校(90m)・城東中学校(1,378m)
形状 - 道路 南側公道6m東側公道7.2m
私道 - その他の制限 -
  • 大町3売家
    有限会社 春日土地建物
  • この物件を問い合わせる/無料
  • TEL: 0120-178-153

物件詳細情報

所在階/階数 - 号室 -
販売価格 15,500,000円 方位 南東
間取り 7LDK (和室:8畳、8畳、6畳) (洋室:5.5、9.5、9.5、12.5)
LDK19
専有面積 - バルコニー面積 -
その他面積 - 駐車場 -
管理費 - 修繕積立金 -
現況 空家
仲介手数料 577,500円
利用制限 -
設備 角地、日当り良好、新築時図面あり、LDK15帖以上、駐車2台可能、駐車場融雪設備あり、南向き、複層ガラス、システムキッチン、追いだき機能付き、温水洗浄便座、エアコンあり、床暖房、都市ガス、下水道、全居室収納あり、CATV、2世帯向き
取引態様 一般
備考 本町商店街の裏通りに面しており東南の角地の好立地です。屋根はステンレス葺、1階は車庫兼倉庫で2階3階が住居部分となっております。室内は手入れ良好でリフォームは少なくて済みます。また造作は高品質な材料を使っておりステータスを感じます。
現在8月末まで賃貸中で家財道具が整理中のため室内写真の公開はしておりません。
取り扱い会社

有限会社 春日土地建物

新潟県上越市本町4-2-19

情報登録日 2025/10/14 次回更新予定日 2025/11/02
取引条件有効期限 2025/08/31
  • 大町3売家
    有限会社 春日土地建物
  • この物件を問い合わせる/無料
  • TEL: 0120-178-153

この物件の地図・周辺情報・行政情報

この物件の周辺情報・行政情報を詳しく見る
【周辺情報】
物件の近くにあるコンビニや銀行・学校など、アイコン付のマップで詳しく表示できます!
【行政情報】
水道料や下水道料・ガス料金など、暮らしに関係のある情報を表示しています。
ローソン 上越高田駅前店(コンビニ)まで450m
中央調剤薬局 大町店(ドラッグストア)まで90m
ウエルシア上越本町店 (調剤薬局)(ドラッグストア)まで160m
藤林内科医院(病院)まで130m
栗原医院(病院)まで390m
(医)知命堂病院(病院)まで550m
八十二銀行 高田支店(銀行)まで230m
(株)大光銀行 高田支店ローンスクエア上越(銀行)まで410m
第四北越銀行 高田営業部(銀行)まで550m
高田郵便局(郵便局)まで680m

※カメラのアイコンがある場合は、マウスをポイントするとその施設の画像がご覧いただけます。


担当取扱い店舗情報

取扱い店舗画像
有限会社 春日土地建物
TEL: 0120-178-153
所在地: 新潟県上越市本町4-2-19
交通: 妙高はねうまライン高田駅
営業時間: 10:00~18:00/定休日:水・第一第三日曜日,祝日
免許番号: 新潟県知事(10)第2950号 この会社の情報を詳しく見る
所属団体名: 公社 新潟県宅地建物取引協会 上越支部
取引態様: 一般
ホームページ: https://apaman-jp.com/