お気に入り物件
0
保存した条件
0
最近見た物件
1

福岡版

エリア変更
ホーム
ホーム
新築一戸建て
福岡県福岡市東区
土井駅
オープンプレイス八田コンフォート
物件の特徴

新築一戸建て 福岡県福岡市東区八田2丁目 2号棟

価格
月々の支払い
10.5万円/月(ボーナス月の支払額:約15.9万円)
交通 香椎線「土井」駅 徒歩11分
香椎線「舞松原」駅 徒歩16分
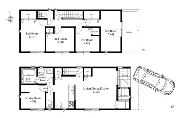
土地面積 100.51m2 建物面積 100.4m2
図面を取り寄せる (無料) 見学予約 (無料)

0120-717-021 (通話料無料) ※携帯電話、PHSからもご利用いただけます。

オープンプレイス八田コンフォート

食洗機や浴室乾燥機など生活に便利な設備充実。ゆったりとリラックスできる1坪バスルーム採用の新邸です。

2駅以上利用可
本日見学可能
浴室1坪以上
建物面積100㎡以上
土地30坪以上
南側道路面す

完成予想図

0120-717-021

※通話料無料。携帯電話、PHSからもご利用いただけます。

物件番号:52310202
物件所在地
交通
価格 4,180万円
ローンシミュレーション
間取り 4LDK+S(Sはサービスルームの略です)
面積(土地/建物) 100.51m2/100.4m2 工事完了予定年月 2024年2月
建物構造/階数 木造/地上2階建て 引渡可能年月 2024年3月
駐車場/台数 有/1台 建物現況 建築中
土地権利 所有権 建築確認番号 第BVJ-ENG23-10-0563号
地代 - 地目 雑種地
都市計画 市街化区域 借地期間 -
用途地域 第一種住居地域 国土法届出 -
接道状況 東南3.8m(公道) 建ぺい率/容積率 60%/160%
セットバック - 私道負担 -
備考 2号棟/協定部分0.18㎡含/別途通路等0.68m2有/現況地目:宅地/建築基準法43条2項2号許可済/LDK17畳
設備/仕様/特徴 建物面積100m2以上/土地面積30坪以上/1階にリビング/システムキッチン/対面式キッチン/食器洗乾燥機/浄水器/浴室乾燥機/浴室1坪以上/シャワー付洗面台/トイレ2ヶ所/温水洗浄便座/ガスコンセント/複層ガラス/南側隣地通路/2駅以上利用可/都市ガス/公共水道/公共下水
小学校区
中学校区
取引形態 媒介 取引条件の有効期限 2023年12月27日
情報更新日 2023年12月26日 次回更新予定日 2024年1月9日

オープンプレイス八田コンフォート

食洗機や浴室乾燥機など生活に便利な設備充実。ゆったりとリラックスできる1坪バスルーム採用の新邸です。

JOINT多々良店まで約1500m

周辺地図

  • 地図はデータ作成時点のものであり、現状と異なる場合があります。
  • 福岡県福岡市東区八田2丁目付近の地図を表すものであり、実際の物件所在地とは異なる場合がございます。

0120-717-021

※通話料無料。携帯電話、PHSからもご利用いただけます。

0120-717-021

※通話料無料。携帯電話、PHSからもご利用いただけます。

ローンシミュレーション 印刷画面を開く

通勤・通学を調べる

資料請求フォーム

1 必須項目の入力
2 資料請求完了

選択した物件

物件種別 所在地 最寄駅 価格 面積(土地/建物)
新築一戸建て 福岡県福岡市東区八田2丁目 香椎線「土井」駅 4,180万円 100.51m2/100.4m2
氏名 必須
メールアドレス 必須
電話番号 必須
お問い合わせ内容

その他、ご希望やご質問などありましたら記入ください

ご希望の担当者
※以前弊社にお問い合せをされたことがある場合
何曜日がお休みですか?

その他

お電話でのご予約も承ります

0120-717-021

(通話料無料、携帯・PHS可)

送信された場合、「個人情報保護方針 」をご確認頂けたものとしてお取り扱いさせていただきます。

ドメイン指定受信を設定されている場合に、メールが正しく届かないことがございます。「@openhouse-group.com」のドメインを受信できるように設定してください。

見学予約フォーム

1 必須項目の入力
2 見学予約完了

選択した物件

物件種別 所在地 最寄駅 価格 面積(土地/建物)
新築一戸建て 福岡県福岡市東区八田2丁目 香椎線「土井」駅 4,180万円 100.51m2/100.4m2
ご見学希望日時

その他、ご要望などご自由に記入ください

営業より日時確定・相談のご連絡をいたします。
お待合わせ場所なども、その際に相談させていただきます。

氏名 必須
メールアドレス 必須
電話番号 必須
ご希望の担当者
※以前弊社にお問い合せをされたことがある場合
何曜日がお休みですか?

その他

お電話でのご予約も承ります

0120-717-021

(通話料無料、携帯・PHS可)

送信された場合、「個人情報保護方針 」をご確認頂けたものとしてお取り扱いさせていただきます。

ドメイン指定受信を設定されている場合に、メールが正しく届かないことがございます。「@openhouse-group.com」のドメインを受信できるように設定してください。

ページの上部へ
undefined