東京・自由が丘に「gallery 一畳十間」をオープン

「一畳十間」が古民家を改修し畳敷きのギャラリーを併設

10月14日、東京・自由が丘に畳敷きの展示空間「gallery 一畳十間」をオープンしました。株式会社小大建築設計事務所(代表取締役:小嶋伸也、小嶋綾香)が運営するフルリノベーションサービス「一畳十間」が企画・運営を行い、日本の衣・食・住の美しさについて発信し、次世代と共に日本の「美しい」を探求する空間です。
(インスタグラム:https://www.instagram.com/ichijotoma_gallery/

 

 

 

 

前面道路から外観をみる。竹垣が通りからの視線を遮り、ギャラリーに静けさをもたらす。前面道路から外観をみる。竹垣が通りからの視線を遮り、ギャラリーに静けさをもたらす。

アプローチをみる。雁行したアプローチが通りからの引き込みを演出。アプローチをみる。雁行したアプローチが通りからの引き込みを演出。

アプローチから玄関をみる。アプローチから玄関をみる。

ギャラリーをみる。珪藻土に包まれた畳敷きの展示空間。靴を脱いで足元から感覚を楽しめる設えとしている。ギャラリーをみる。珪藻土に包まれた畳敷きの展示空間。靴を脱いで足元から感覚を楽しめる設えとしている。

ギャラリーをみる。什器は展示だけでなく様々なイベントに対応できる仕様。ギャラリーをみる。什器は展示だけでなく様々なイベントに対応できる仕様。

庭をみる。室内と庭を一体的につかった展示等が可能。庭をみる。室内と庭を一体的につかった展示等が可能。

庭からギャラリーの夕景をみる。2300×1650のFIX窓が照明の灯る展示空間を切り取る。庭からギャラリーの夕景をみる。2300×1650のFIX窓が照明の灯る展示空間を切り取る。

ギャラリーの夕景をみる。間接照明は調光調色が可能で小上がりとピクチャーレールにより様々な展示方法に対応できる設え。ギャラリーの夕景をみる。間接照明は調光調色が可能で小上がりとピクチャーレールにより様々な展示方法に対応できる設え。


「gallery 一畳十間」は、畳・珪藻土・古材等の自然素材を使用しており、靴を脱いで足元から体感できる展示空間です。今後は、衣・食・住にまつわるイベントや次世代作家の展示会等を開催する予定です。アパレルの展示、家具の販売会、庭を一体でつかうワークショップ、キッチンを利用した食のイベントなど、閑静な住宅街で都会の喧騒から離れた特別な時間を提供します。

 

 

 

小上がりの展示スペース小上がりの展示スペース

アパレル展示等にも利用できる展示什器アパレル展示等にも利用できる展示什器


展示の第1弾では、10月14~16日の3日間、東京を拠点に活動するシューズブランドPETROSOLAUM(ペテロオラウム)の23ssのExhibitionを開催しました。

展示の様子展示の様子

トークショーの様子トークショーの様子

 

 


【gallery一畳十間について】


◆規模
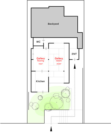
展示空間:34.8㎡(和室:14畳、フローリング:7畳)
キッチン:11.6㎡
天井高さ:2.35m(一部2.0m)

◆特徴
庭付き、和室、キッチン併設(ガスコンロ3口)、照明調整可能(調光、調色、器具交換等)、フィッティングルーム(キッチン兼用)、ピクチャーレール、テーブル・チェア貸出可、ハンガーポール貸出可、プロジェクター・スクリーン貸出可、その他展示什器相談可

◆利用可能時間
①1時間単位(10:00~20:00/最低利用時間3時間)
②1日単位(10:00~20:00)
③1週間単位
※搬入から撤収までのお時間となります。
※時間外利用についてはご相談ください。
※利用料金についてはお問い合わせください。

◆設備
空調、電源、Wi-fi、室内照明(調光・器具交換可)、間接照明(調光・調色可)、冷蔵庫、キッチン、専用トイレ、ピクチャーレール、プロジェクター、スクリーン

◆アクセス
〒152-0035 東京都目黒区自由が丘3-14-8
東急東横線・大井町線:自由が丘駅 徒歩10分
専用駐車場なし
※近隣駐車場をご利用ください。

◆お問い合わせ
展示会、撮影、取材等、gallery一畳十間を利用ご希望の方は、
①ご希望日程 ②利用用途 ③ご希望の条件 ④その他ご相談
をご記載いただき下記お問い合わせ先までご連絡ください。
(お問い合わせ先:contact(at)ichijo-toma.jp)

【 一畳十間について 】
一畳十間は「日本の心地良い美がある暮らし」をテーマに掲げる住宅に特化したリノベーションサービスです。一見の便利さよりも、豊かな風土で育まれた美しい日本文化を継承し、日本人に合った自然素材を選定します。手触りや光との親和性が生み出す感覚が、年数を経て家族と穏やかに変化し、馴染み、豊かな暮らしを創造します。

事業名:暮らしと素材事業部
所在地:〒152-0035 東京都目黒区自由が丘3-14-8
代表者:小嶋伸也 小嶋綾香
事業開始:2021年3月
Webサイト:http://ichijo-toma.jp/
インスタグラム:https://www.instagram.com/ichijo_toma/
e-mail:contact(at)ichijo-toma.jp
写真撮影:堀越圭晋/エスエス

「一畳十間はじまりの家」「一畳十間はじまりの家」


【 小大建築設計事務所について 】
株式会社小大建築設計事務所は、東京と上海に事務所を構えこれまで日本と中国にて新築・改修、用途規模の大小に関わらず設計管理・監修を行っています。現代の情報化社会で表層的になってしまった人間関係、薄れた地域性を再生すべく、小さなローカルなものからでも、集う場所を作り持続的で大きく確かな経済性を生み出すような設計を心がけています。また大量生産の末、均一化されてしまった素材に異を唱え、地域の風土や文化的背景を継承できる素材を取り入れることで、職人技術や地域の美しさを継承していくことを目指しています。

会社名:株式会社小大建築設計事務所
東京事務所:〒152-0035 東京都目黒区自由が丘3-14-8
上海事務所:长宁区定西路1207号6楼601室
代表者:小嶋伸也 小嶋綾香
設立:2015年設立
URL:https://ko-oo.jp/
※以下、メディア関係者限定の特記情報です。個人のSNS等での情報公開はご遠慮ください。
このプレスリリースには、メディア関係者向けの情報があります。

メディアユーザー登録を行うと、企業担当者の連絡先や、イベント・記者会見の情報など様々な特記情報を閲覧できます。
※内容はプレスリリースにより異なります。

  1. プレスリリース >
  2. 株式会社小大建築設計事務所 >
  3. 東京・自由が丘に「gallery 一畳十間」をオープン