<img height="1" width="1" style="display:none" src="https://www.facebook.com/tr?id=201219740353084&ev=PageView&noscript=1" />

更 新 情 報

全国のR不動産の最新情報


新着情報



グループサイト・更新情報



>>HEADLINEを見る



物件詳細情報
 

  • 坂の途中に立っています。下は専用駐車場。
  • 心地よい緑越しの光が入るリビング。
  • L字型の開口部からは緑と眺望が。
  • 庭のウッドデッキは図面より広がっています。
  • 庭の緑の先に景色が抜けています。
  • LDK横の洋室。出窓がいい感じです。
  • 1階の洋室。写真手前に収納があって奥は明るい部屋になっています。
  • 地下階の洋室。天井は低めで約1.8mくらい。窓付きです。
  • 玄関横の洋室。収納も多めです。
  • 玄関。少し上がってLDKへ。下がって1階へ。
  • 1階の床下収納は収納力たっぷりです。高さは約1.2mくらい。
  • 横幅広めで作業しやすそうです。4口コンロ。
  • 洗面室にも収納多めです。
  • シャワーブースもあります。
  • 洗濯機が2台置けます。
  • 薪ストーブ。冬が楽しみです。
  • 坂の途中に立っています。下は専用駐車場。
  • 心地よい緑越しの光が入るリビング。
sale     住宅
あれも、これも、やりたい!!
 
価格: 3,980万円
面積: 127.24㎡
 
所在地: 横浜市港北区日吉本町
交通: 東急東横線・横浜市営地下鉄グリーンライン「日吉」駅 徒歩7分
管理費: なし
修繕積立金: 26,000円

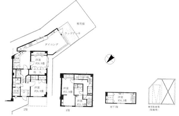
駅前の放射状に区画整理された商店街を抜けると、広がる静かな住宅街。その一角に立つ小さなマンションの1戸が、今回の物件です。


マンションは小さいですが、専有面積は127㎡と広々していて、地下部分には専用の駐車場も付いています。


まず2階部分にある玄関を入ると、正面に上下階段、左右に扉があります。右の扉は洋室、左の扉は洗面所とバスルーム、トイレです。


階段を上がると、洗濯機置場(2台分)とシャワールームがある、少し変わった構成になっています(大きめの床下収納付き)。右の扉は洋室で、ここは収納たっぷりです。


さらに奥に進むと、大きく長いキッチンがあるLDKがあります。リビング・ダイニングにはL字型の開口部があって、それに合わせてベンチ・テーブルが造作されていて、とても居心地が良い空間。角には薪ストーブもあるので、冬が待ち遠しくなりそうです。


その先は、桜の木やキンモクセイの木の緑が生い茂り、かつ眺望が抜けています。さらにウッドデッキ付きの専用庭があって、リビング・ダイニングから出られます。友達を呼んでBBQをしたり、ビニールプールで子どもと遊んだりと、いろいろ楽しめそうです。


玄関に戻り、階段を下ると洋室と書斎・納戸があります。もう一つ下って地下階まで行くと、さらに洋室があります。部屋数が多いので、子供部屋、趣味の部屋、物置部屋など、困らなそうです。またいろんな場所に収納もあります。


室内は一部リフォーム済み(平成29年3月下旬)、全体的にきれいなので、そのまま住むことも出来ると思いますが、築年数相応の部分もあります。せっかくなので気になる部分を改修するのも良いと思います。


ちょっとクセのある物件だと思いますが、あれもこれも出来そうな、夢が広がる物件です。


L字型の開口部からは緑と眺望が。
庭のウッドデッキは図面より広がっています。
庭の緑の先に景色が抜けています。
  
  
  
  
   

担当:エンドウ
 
価格 3,980万円 専有面積 127.24㎡
管理費  なし 修繕積立金 26,000円
所在地 横浜市港北区日吉本町
交通 東急東横線・横浜市営地下鉄グリーンライン「日吉」駅 徒歩7分
建物構造 鉄骨鉄筋コンクリート造地下1階付き3階建て 所在階
築年 1979年 土地権利 所有権
敷地面積 269.49㎡ 都市計画 市街化区域
用途地域 第一種低層住居専用地域 建蔽率/容積率 40%/80%
その他費用 取引態様 媒介
設備 薪ストーブ
備考 地目:宅地/管理形態:自主管理/総戸数:4戸/現況:空室/引渡時期:即可/駐車場:あり(専用・屋根付き)/エレベーターなし/平成29年3月下旬リフォーム完了/専用庭:あり(29.65㎡)/土地持ち分:248.05㎡(4分の1)+21.44㎡(5分の1)/ペット可
情報修正日時 2017年7月31日 情報更新予定日 2017年9月4日
  ※掲載の情報が現状と異なる場合には、現状を優先するものとします。