更 新 情 報

全国のR不動産の最新情報


新着情報



グループサイト・更新情報



>>HEADLINEを見る



物件詳細情報
 

  • 存在感のある美しい外観。
  • リビング。正面は南向き。床は黒に塗られたモルタル。
  • キッチンや2階の部屋とも一体感のあるつくり。手スリはネットを張ればお子さんも大丈夫。
  • ゆったりとした広さのリビング
  • 2階の寝室
  • 階段の先はテラスに。
  • 玄関。
  • 1階の玄関脇には和室。
  • 2階の洋室。ロフト付。
  • 2階廊下。今の所有者さんは手すりにネットを掛けています。
  • みんなで囲えるようなキッチン。
  • 2階のバルコニーを室内から見て。階段部分の明かり取りにもなっている。
  • 玄関前にテラス。
  • 夜の外観。南面から。
  • 夜の外観。正面から。
  • 東側には武蔵野線が走る。室内に少し音は響きます。
sale     住居
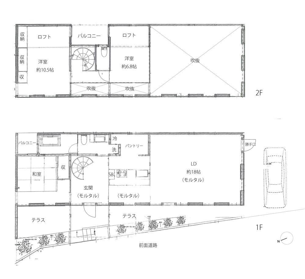
ダイナミックな吹抜空間
 
価格: 5,200万円
面積: 105㎡
 
所在地: 千葉県松戸市河原塚
交通: 武蔵野線・京成成田空港線・北総線「東松戸」駅 徒歩13分
管理費: なし
修繕積立金: なし

のんびりとした住宅街に突如現れる、長方形の建築物。そのスケール感に、まさかこれが住宅とはと驚かされます。


気になるその内側は、想像以上にダイナミックな空間に。特徴的なのは、広くつくられたリビングとぜいたくな吹抜け。縦にはめ込まれたガラスからはたくさんの明かりが注ぎ、見上げれば青空が望めます。


壁で区切らず、つながるような空間としているのも開放的で気持ちよいです。玄関からリビングまでは一続きになっており、家族全員がコミュニケーションを取りやすいような家になっています。


その他、1階には和室。和室といえども琉球畳と木の合板の床が組み合わされたカジュアルな空間。2階は北側と南側に2部屋。南側の部屋は壁で区切らず、リビングの空間とつながるようにつくられています。


玄関脇のテラス部分も広いスペースが確保されており、6人がけくらいのゆったりとしたテーブルを置けるような空間です。


場所は東松戸駅から13分ほどの場所。

東松戸駅は、北総線と武蔵野線が使えます。

北総線は都営浅草線に乗り入れをしており、日本橋まで30分ほどで、武蔵野線は東京駅まで40分ほどです。


駅前には開発が入る予定とのこと。既に新しい保育園が2つできたようで、所有者さんはスムーズにお子さんを保育園へ入園させられたらしいです。


都内ではなかなか実現出来ない空間かなと。。

こういう家が憧れだったという方にぜひ。

床面積以上に容積的な広がりを感じていただけると思います。


*写真提供:中川敦玲


リビング。正面は南向き。床は黒に塗られたモルタル。
キッチンや2階の部屋とも一体感のあるつくり。手スリはネットを張ればお子さんも大丈夫。
ゆったりとした広さのリビング
2階の寝室
  
  
  
  
    

担当:ふるはし
 
価格 5,200万円 建物面積 105㎡
管理費  なし 修繕積立金 なし
所在地 千葉県松戸市河原塚
交通 武蔵野線・京成成田空港線・北総線「東松戸」駅 徒歩13分
建物構造 木造2階建て 所在階
築年 2012年 土地権利 所有権
土地面積 157.61㎡ 都市計画 市街化区域
用途地域 第一種住居地域 建蔽率/容積率 60%/200%
その他費用 取引態様 媒介
設備
備考 地目:宅地/現況:居住中/引渡時期:相談/接面道路:西側位置指定道路・幅員4.5m/ペット可
情報修正日時 2016年8月31日 情報更新予定日 2016年10月12日
  ※掲載の情報が現状と異なる場合には、現状を優先するものとします。