| ◆山城鞍馬山多宝塔 山城鞍馬寺:近世には本堂横に多宝塔が存在し、
文化11年(1814)全山の火災で類焼したものと推定される。
そして焼失後この塔は再興されずと推定される。なお多宝塔は昭和戦後に別の場所に再興される。
◆山城岩倉大雲寺
大雲寺絵図(下に掲載)には三重塔が描かれ、詳細は全く不明であるが、古には三重塔があったことを示唆する。
大雲寺は天禄2年(971)円融天皇の勅願により、日野中納言藤原文範が真覚(藤原敦忠息)を開山として創建したと伝える。
永観3年(985)昌子内親王(冷泉天皇中宮・朱雀天皇皇女)寺内に観音院を建立。(日本紀略)
天元4年(981)余慶僧正(智弁、園城寺長吏、法性寺座主)は山門・寺門の対立の激化により、寺門の僧数百人を連れ叡山を下り、大雲寺へ入寺する。この頃寺門の拠点として三塔(大雲寺・是王寺・福泉寺)の本寺として最盛期を迎えるも、その後も寺門・山門の抗争は止まず、大雲寺はたびたび山門により焼払われる。
その後、中世を通じ抗争や兵乱がやまず、次第に衰微する。
元亀2年(1571)織田信長の比叡山焼討により大雲寺も炎上する。
寛永年中(1624-)実相院門跡義尊、本堂等再建。
※実相院門跡は応仁の乱後、大雲院山内成金剛院の地に洛中より移転し、岩倉実相院が成立。
昭和60年、寛永年中再建本堂を焼失(不審火?)。寺地を岩座神社東に移転、再興される。
旧寺地には閼伽井(智弁水)・不動の滝・実相院宮墓・昌子内親王高倉陵などが残る。
◆大雲寺絵図:岩倉実相院門跡蔵、作成年不詳、(2009年「実相院の古文書」展より)
盛時の大雲寺を描くもので、北大門を東から入り直右手(北)に堂名不明の堂と三重塔が並んで建つ。本堂位置が寛永期再興の大雲寺があった場所と思われる。三重塔の履歴は全く不詳。
本寺である園城寺の盛観とは比較にならないが、その巍々たる様子は良く表されている。
昭和初頭?大雲院:右に水盤、石垣、本堂が見える、左は城守保養所。写真は「岩倉の伝統と近代との相克:日本のゲール」Akira
Hashimoto著(「精神保健福祉論2007、シリーズ:精神保健福祉の思想と歴史」所収)に掲載。
新撰京都名所圖會・大雲寺:巻2、竹村俊則、昭和34年、上記写真とともに、今は無き近世大雲院の貴重な記録であろう。現大雲寺は当図の反対側・石座神社の東に再建される。
◆山城高山寺
高山寺:古には三重塔の存在が知られる。
◆山城賀茂別雷神社
京洛平安期の塔婆、賀茂上社神宮寺・賀茂下社神宮寺;上社には神宮寺多宝塔/その他の多宝塔の存在が知られる。
◆山城賀茂御祖神社
京洛平安期の塔婆、賀茂上社神宮寺・賀茂下社神宮寺:古には東西御塔などの存在が知られる。
◆山城北白川滅苦寺跡碑 →直下の山城北白川廃寺を参照
サイト:京 都 風 光>滅苦寺跡 には「滅苦寺跡」として、以下の解説(概要)がある。
京都造形芸術大の北角(北白川通に面す・左京区一乗寺樋ノ口町)に「滅苦寺跡」の石標が立つ。
北白川廃寺の跡は滅苦寺跡であると云う。また、粟田氏の氏寺粟田寺であったとも云う。
あるいは、同区域に独立して存在した別の寺院であるとも云う。
詳細は不明であるが、奈良前期もしくは白鳳期に創建され、鎌倉期まで存続したと云う。
貞享3年(1686)「雍州府志」黒川道祐 では、寺は北白川将軍山の西麓にあったと云う。
昭和9年(1934)周辺の発掘調査により、瓦、瓦積基壇が発見される。
昭和49年(1974)昭和50年(1975)の発掘調査では、塔跡とみられる正方形の石積基壇が発見される。
以上の解説で「京都造形芸術大の北角に『滅苦寺跡』の石標が立つ。」と云うこと及び「雍州府志云々」という
解説は拙サイトにとっては新しい「知見」であった。しかし、それ以外の解説は近年に「北白川廃寺」と命名された遺跡の解説と思われる。
つまり、この碑は、地元で根強く残ると思われる「
この地に滅苦寺があった」と云う伝承を顕彰するものなのであろう。
そして言外に近年発見された北白川廃寺こそ「滅苦寺跡」に相応しいという思い入れを込めたものなのであろうと推測する。蓋し、現時点では、具体性を帯びた「滅苦寺跡」の遺構としては北白川廃寺以外には見当たらないのが実情であろう
から。
ここには礎石と思われる1個の石と数点の用途不明の石製品が置かれるが、これらが何であるかは不明である。
また、石碑には「滅苦寺跡」「田邊正直也」と刻まれるが、設置者と思われる田邊正直なる人物の情報は皆無で良く分からない。
2012/12/25撮影:
山城北白川滅苦寺跡碑 滅苦寺跡推定礎石1 滅苦寺跡推定礎石2 滅苦寺跡推定遺物
2013/02/09追加:
「雍州府志 巻八 古跡門上」黒川道祐、貞享3年(1686)では以下のように云う。
滅苦寺ノ跡 北白川将軍山ノ西北の麓ニ在リ。古へ斯ノ処ニ葬場ヲ置ク。寺有、滅苦寺ト号ス。今、寺ハ絶へ葬場ハ残レリ。
土人、誤リテ目决(メケツ)ト称ス。滅苦寺ト目决トハ、倭語相近キニ因リテ也。猶、苦集滅道ヲ誤テ、倶知奈波ノ図子と称スルノ類ナリ。
且、目决ノ之誤リニ因テ、遂ニ悪七兵衛景清、六波羅ノ為メ、両目ヲ决ラルト称ス。是レ誤伝ノ甚キ処ナリシ者ナリ。
※平景清は源氏に捉えられし後、源氏の隆盛を自分の眼で見ることに耐えられず、自らの眼を抉り(决り)、空に投げつけたと云う。
2013/03/11追加:
H_O氏より、「田邊正直」とは不明と云うことに関して、一乗寺村「鷲尾家雑掌宅跡」の京都市設置駒札の情報提供を受ける。
駒札情報とその他の情報を総合すると以下のように推察される。
《田辺家は元々豊臣秀吉に仕えていたと伝える。豊臣氏滅亡の後浪人となるも、元禄年中より「雑掌」として鷲尾家に仕える。「雑掌」とは公家に仕えて諸事・雑務を掌握・司る役割であろう。
近世、鷲尾家は一乗寺村に家領を有していたが、田辺家に一乗寺村の領地の管理を任せ、さらに納米の用務や、時には家臣として宮中出仕もさせていたという。また江戸期には、一乗寺村は諸寺の寺領や公家の家領であったばかりでなく、比叡山への道筋である雲母坂にあったところから、田辺家が番所を兼ねることもあったという。
なお、田辺家には、幕末の洛中の騒乱・戦火を避けて、鷲尾家に伝わる諸々の古文書等が保管され、今日に伝えられる。
さて、その田辺家であるが、今もその邸宅を一乗寺に残し、その一画で「雲母漬け」の販売を行っているという。
現在の当主の祖父が「田邊正直」氏であると云う。》
以上の経歴から、田辺家は一乗寺の代官あるいは庄屋(名主・肝煎)のような存在であり、おそらくは、その血筋である「田邊正直」氏はその由緒や一乗寺を愛する精神から、遺物を集めその保護を企図し、伝承される「滅苦寺跡」を後世に伝えるため、「石碑」を建立したものと推察する。
なお、公家「鷲尾」家については「羽林家
(鷲尾)」に詳しい。
◆山城北白川廃寺
現在北白川廃寺跡は住宅の密集地となり、地上には何も見るべきものは無いが、以下の経過で、北白川廃寺の姿が明らかになりつつある。
○昭和9年(1634)の区画整理の時、東方基壇(金堂跡と推定)の瓦積基壇が発見され、大量の瓦が出土する。
「北白川廃寺発掘調査現地説明会資料 2005/12/05」 より
東方基壇発掘状況1:西北より撮影
東方基壇発掘状況2:落下しているのは礎石であろう。
原資料:「北白川廢寺阯」(「京都府史蹟名勝天然記念物調査報告 第19冊」京都府、昭和14年 所収)
なおこの瓦積基壇の一部は京都大学総合博物館裏庭(館の東)に移転・復原展示される。
2013/06/17追加:
○「北白川廢寺阯」(「京都府史蹟名勝天然記念物調査報告 第19冊」昭和14年 所収) より
本廃寺は昭和9年秋、京都市の土地区画整理工事中、偶然に発見される。
しかし、区画整理事業は俄かに予定の変更をすることが能わず、遂に記録保存による外はなかったのは「不得止の次第」である。
当然、考古学の観点からは史蹟保存が望ましいが、開発圧力には抗し得ず、関係者との協議の結果、基壇の一部を京都帝国大学の構内に移し、遺跡そのものは記録保存に留めることに決する。かくして、遺跡は「人家の間の没し去」ることになる。
さて、今般発見された遺構の内、最も重要なのが東方基壇である。
東方基壇は東西一辺119尺余(36m余)、南北75尺5寸(22.9m)の矩形であり、相当な規模の堂宇が建っていたものと推定される。
(愿位置を保つ礎石及び礎石据付痕は一切発見されず、堂宇の規模は不明である。)
基壇は下部に石築2段の基礎を置き、その上に平瓦を積んだものである。
高さは地形が東側がやや高い関係上、西側は5寸と4寸の2段石築基礎の上に3尺の瓦を積み、東は2尺以下の高さの瓦積である。積み方は崩壊を防止するため、上に至るほど内側に瓦を順次引き込んだものである。
なお、外観の単調を防ぐためであろうか、平瓦の積の所々に丸瓦を混ぜるものである。
さらに基壇の東西中央の南北2箇所に幅14尺内外(4.2m内外)の石積石階を付設する。
東方基壇・西側 東方基壇・南側:右手に散布する石は石階のものか。
東方基壇・断面図 西側基壇形状図(一部) 東方基壇復原図
北白川廃寺付近地形図
上記の地形図で示される北白川廃寺西部区域においても以下が観察される
即ち、西部区域には瓦の集積を見る。区画整理で白川通(12間)の西に南北の3間道路を新設したが、その両端は溝状に掘削される。その溝に挟まれた道路上から原位置を動く3個の大石が発見される。当初はこの大石を礎石と断定する加工は観察されなかったが、溝上にあった大石は後に衣川氏が買受
、庭石として邸内に据えたが、この時溝上のあった下面には円形造出のあることが判明する。
礎石は径2尺2寸高さが5分内外の造出を持つ。
西部地区実測図 西部地区発見礎石実測図
※戦後、この西部地区は塔跡と確認されるが、しからば、この礎石は塔の礎石の蓋然性が極めて高いものと推定される。
○2012/12/25撮影:
北白川廃寺東方基壇跡:北より撮影、南北道路左右の民家が東方基壇跡
▽京都大学総合博物館裏庭
現在、移転復原された東方基壇西辺の一部は京大総合博物館裏庭に現存する。
2段の地覆石の上に半裁した平瓦を積み重ねる形状である。
28段が現存する。基壇上部は削平され、上端部の構造は不明とする。
東方基壇移設瓦積基壇1 東方基壇移設瓦積基壇2 東方基壇移設瓦積基壇3 東方基壇移設瓦積基壇4
東方基壇移設瓦積基壇5 東方基壇移設瓦積基壇6 東方基壇移設瓦積基壇7
2014/10/12撮影;
東方基壇移設瓦積基壇8
○昭和49年(1974)昭和50年(1975)東方基壇の西約80mの地点で、一辺13.6mの方形基壇が発見される。この遺構は心礎抜取穴を伴い、塔阯であることが確認される。
出土瓦などから、創建は白鳳期で、心礎は地上式と判断される。
発掘の結果、この塔の基壇化粧は乱石積基壇であるが、その内側は瓦積基壇であることが判明。つまり、塔基壇は一度改装され、平安前期で石積をし、南北階段を付加、一辺14mと基壇化粧が改装されたものと推定される。
→平成7年(1995)の発掘でも同様のことが確認される。
「平成7年度 京都市埋蔵文化財調査概要」京都市埋蔵文化財研究所、1997 より
北白川廃寺塔跡全景
出所失念:
北白川廃寺塔跡全景2
「北白川廃寺塔跡発掘調査現地説明会資料 1995/09/02」
塔跡瓦積基壇南東部
北白川廃寺塔跡発掘図
原資料:「北白川廃寺塔跡第一次発掘調査概報」(「北白川廃寺塔跡発掘調査報告」北白川廃寺発掘調査団、1976 所収)
2013/06/17追加:
○「北白川廃寺緊急発掘調査概報」(「北白川廃寺塔跡発掘調査報告」北白川廃寺発掘調査団、1976 所収) より
昭和59年本土地を借地していた土建業者がゴミ投棄用の穴として重機にて5×10m×2.5mの穴を掘削するも、偶々オペレータが交通事故に遭い、穴はそのまま暫く放置される。これまた偶々京大関係者がこの穴を見て、古瓦の散乱するのを発見し、関係機関に連絡したのが発端であった。連絡を受けた関係機関は基壇らしきものと認め、地主と土建業者に調査の必要性を説き説得するも、いずれも「消極的態度」であり、緊急調査に留めざるを得ないこととなり、短期間の調査を実施する。
なお、この地は西側道路より約1m高い土地である。
掘削穴の西壁と東壁南壁の調査が可能であり、整理した結果、西壁は基壇面の様相を呈していたが、発掘も出来ず、これ以上の調査は不可能であった。
調査穴全景(北から) 調査穴西壁断面図:E〜Lが基壇断面と考えられる。
※なお、この穴で検出された基壇断面は、塔の南に位置し、塔とは別の規模や位置が不明の塔南方の堂宇の基壇である。
2013/06/17追加:
○「北白川廃寺塔跡第1次発掘調査概要」(「北白川廃寺塔跡発掘調査報告」北白川廃寺発掘調査団、1976 所収) より
昭和50年、上記緊急調査の行われた土地の東側の土地(この土地は白川通りに接する)の所有者が医院(浮村胃腸科医院)開業にあたり、発掘調査の届出を行う。関係者の協力(発掘調査費の浮村氏の負担など)を得て、
3月から5月まで発掘調査を実施する。
塔阯に該当する発掘可能な面積は狭小であったが以下の成果を得る。
発掘の結果、東南隅である建物基壇が発見される。
この基壇は版築で築かれ、基壇化粧は当初は瓦積であったが、後に石積で補強されたものであろうと推測される遺構が発掘される。
さらに、この発掘ではその途中で、西隣の土地所有者が無断で貸ガレージにするために、無断で造成工事を開始する事件が起る。無断工事を中断させ、緊急発掘の結果、ここでは基壇西南隅が発掘され、結果としては、南辺(東西辺)は13.6mと確定される。
(次項の「第2次発掘調査概要」を参照)
基壇内においては、トレンチなどで礎石やその据付痕などの探索を行うも、何も発見できず。
出土瓦から本遺構は白鳳期から平安初期まで存続したと推定される。
瓦積基壇実測図
石積基壇/東南隅 石積基壇と瓦積基壇の並存 瓦積基壇・東南隅 瓦積基壇・東南隅俯瞰
瓦積基壇・東南隅南側 瓦積基壇・東南隅東側
2013/06/17追加:
○「北白川廃寺塔跡第2次発掘調査概要」(「北白川廃寺塔跡発掘調査報告」北白川廃寺発掘調査団、1976 所収) より
昭和50年6月-7月の緊急発掘である。場所は昭和49年緊急発掘が行われた地点の東北側である。
今般も、49年とは別の土地を借用していた土建業者がガレージ造成のため、無届で西側の道路面に合わせて、台地を約1m重機で削平する。
偶々付近で上記の発掘調査中の関係者がこれに気づき、工事の中止を要請し、発掘調査に取り掛かる。
まず、西南隅の瓦積基壇の地覆石が辛うじて残存し、西南隅のコーナーが検出される。結果南辺の長さは13.6mと確定する。
次いで、西北隅の検出を目指し、西北のコーナーを検出する。その結果、予想の通り、この基壇は正方形と判明し、塔阯と断定される。
さらに、表面では四天柱礎・側柱礎の探索をするも、礎石や根石やその痕跡は発見できず。
しかし心礎部分は土色が変化し、その存在がはっきりする。
土色の違う部分は直径3mで円形をなす。表土した50cmの掘り下げでは心礎は出ず、さらに探索捧で1.5m-2m程度調査するも発見できず、心礎は更にその下にあるものと判断される。 (注釈)
ところがこの時点で、土建業者は発掘調査に対し妨害を加えるに至り、再々の話し合いがもたれるも折り合いが付かず、心礎の探索は断念し、発掘調査は修了する。
塔跡発掘調査平面図
塔基壇西北コーナー 西辺石積基壇その他 西辺石積基壇:瓦積基壇の前面を石積基壇が覆う。
西辺石積基壇 基壇西北コーナー 基壇西北コーナー隅石
基壇南辺石階
心礎位置写真
推定塔礎石:仁志出氏邸庭石(元衣川氏邸)
昭和9年の「北白川廢寺阯」に実測図があり、衣川氏邸に遷された礎石は今も元衣川氏邸(現仁志出氏邸)に現存する。
限りなく、塔礎石と思われるも、昭和49年に発見の基壇に建つ堂宇の礎石の可能性もあり断定は差し控える。
(注釈)
1995年の塔阯の再調査の現地説明会資料では
「基壇中央の窪みは心礎の据付穴と考えられるが、心礎は何時の時代かは不明ながら、抜き取られたものと思われる。
(最終段階では基壇を断ち割り、心礎の有無を確認したいとも記載する。)
基壇の北辺と南辺では石積の石階を付設し、出幅は約120cmを測る。」(要旨)
とある。
○昭和55年(1980)回廊とみられる柱列が発見される。
○平成17年(2004)回廊であることが確定される。
○「北白川廃寺塔跡発掘調査現地説明会資料 1995/09/02」
北白川廃寺遺構配置図
「北白川廃寺発掘調査現地説明会資料 2005/12/05」 より
北白川廃寺推定伽藍図
この廃寺の性格は、この地が古には粟田郷に属すことから、粟田氏の氏寺(粟田寺)とも推測される。
さらに、この廃寺は、将軍山城(北白川城、瓜生山城、勝軍地蔵山城)の西に存在していたとされる「めっく寺」(「滅苦寺」)の跡であるという説が根強くあると云う。
※上項のように、現在当地北方に「滅苦寺跡」の石碑と若干の遺物と思われるものが保存されている。
この地にあった廃寺を「滅苦寺跡」として顕彰する意図であろうと推測される。
→すぐ上の項「滅苦寺跡」を参照。
※「雍州府志」では、地元民(土人)は「目抉寺」と勘違いしているという話が挿まれる。(2013/02/09修正)
※典拠は不明であるが、「滅苦寺」は本来は「苦滅寺」であったとする資料もあると云う。
再度概括すれば、出土瓦から、この廃寺は奈良前期から平安期(もしくは鎌倉期)まで存続していたと推定される。
東方基壇(金堂と推定される)は高さ1.2m、東西36.1m×南北22.8mを測り、地方寺院として破格の規模であると云う。
さらに西方約80mには方形の基壇と心礎抜取穴が発掘され、塔跡とほぼ断定される。
また東方基壇の西では廻廊跡が発掘され、この基壇は廻廊に囲まれると推定され、東に金堂院、西に塔と云う伽藍配置を採るものと推定される。これは東方基壇と塔の基壇の南縁がほぼ一直線上に並立してあり、同笵の軒丸瓦も発見されたことも、この伽藍配置の可能性を示唆するのであろう。
しかし、東西の基壇が離れすぎているので、これ等の基壇は並立する二つの寺院とする異説もある。
○2012/12/25撮影:
山城北白川廃寺塔跡1:中央奥が塔跡、西北より撮影 山城北白川廃寺塔跡2:写真中央が塔基壇
山城北白川廃寺塔跡3:駐輪場付近が心礎位置 山城北白川廃寺塔跡4
2013/10/26追加:
○「北白川廃寺塔跡」(「京都市内遺跡発掘調査概報平成7年度」京都市埋蔵文化財研究所、1996 所収)より
北白川廃寺遺構配置図
北白川廃寺塔跡発掘図 塔心礎据付平面/断面図 基壇北・西/平面/断面図 塔瓦積基壇実測図
塔一辺は6.6m、2.2mの等間である。
塔の創建時は一辺13.8mの瓦積基壇であるが平安前期に一辺14mの乱石積基壇に改築される。
石積基壇に取り付く南北階段は最初南側に幅2.8mの第一次階段が造られ、その後第二次階段として幅4.0mに拡幅し同時期に北側階段も造ったと考えられる。
心礎は発見できず。据付穴は東西約3.5m南北約3.2m深さ約0.5mの円形で版築土層は認められず径30〜60cmの根固め石を原位置に留める。
◆山城真如堂大塔屋敷
2013/02/09追加:「雍州府志 巻八 古跡門上」黒川道祐、貞享3年(1686)では以下のように記載する。
吉田神楽岡の東麓と真如堂の之西南に在り。相伝ふ始め真如堂の中多宝塔の在し処なり、茲れ自り白川に出の経路大塔道と称す。
一説に古へ大塔宮尊雲法親王の別院此の処に在りと云ふ。是れ謬伝か。
◆山城広隆寺心礎
楼門東南に「太秦広隆寺」の標石があり、この標石の台石に心礎が転用される。
この心礎は元講堂の西45mほどにあったとされる。
「日本の木造塔跡」:心礎は2.4m×2m×85cmで中央に径90cmの穴の跡がある。
(穴はコンクリートが詰められていて見ることは出来ない)。
おそらく延暦年間に(北野廃寺からと推定される)移転した当時の広隆寺五重塔心礎と考えられている。(塔頭十輪院三重塔との説もある。)
当寺は推古31年(623)聖徳太子の菩提のため秦河勝が建立したと伝える。
「よみがえる平安京」:広隆寺模型
山城興隆寺心礎1 山城興隆寺心礎2 山城興隆寺心礎3
◆山城法金剛院
「京洛平安期の塔婆」のページに掲載。
三重塔跡が発掘される。
◆山城松尾社
松尾神社及近郷絵図(全図)、松尾神社及近郷絵図(部分図):
松尾社南方に宿院があり、その前方には三重塔が存在する。
※「松尾社一切経」については京都妙蓮寺の「松尾社一切経」の項参照
◆山城平野神社
平野神社社頭絵図(部分):現在の様子とは全く相違し、神宮寺があり、三重塔が存在する。
「よみがえる平安京」:平野社・施無畏寺模型
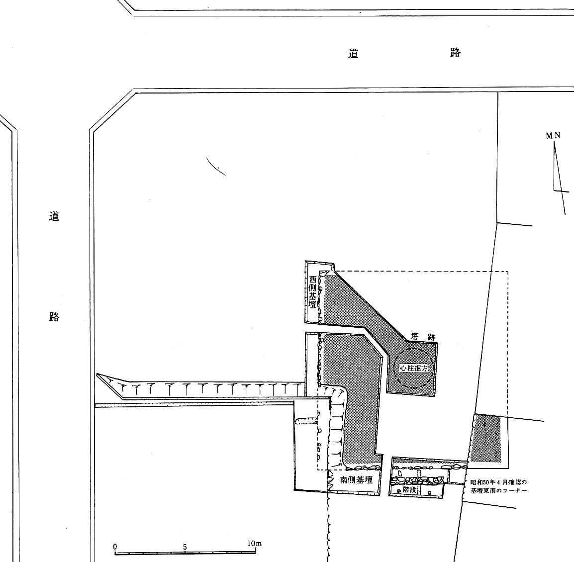
◆山城樫原廃寺(史跡)
1967年発掘調査で、7世紀半ばに建立されたと推定される八角三重塔等の遺構(一辺6mの八角形の瓦積基壇と塔心礎)を検出。史跡指定され中門・塔・回廊跡とともに史跡公園として保存される。
図1 図2 図3:想定復元図
、現地案内板から転載。
「京都の歴史1」:塔基壇は一辺5.07m、対辺距離12.27m、柱間2.2mの瓦積み基壇(八角)と推定。心礎は東西1.98m、厚さ1.05mの花崗岩に、
径85×9cmの円穴を彫る。
「幻の塔を求めて西東」:心礎は200×200cmで、径86×9cmの円穴を持つ。地下式200cm、白鳳初。
山城樫原廃寺心礎(昭和42年)
2006/11/11追加:京都市埋蔵文化財研究所「研究紀要 第9号」平成16年所収:
「樫原廃寺の再検討(上)」久世康博より:
第1次調査(1967年)結果は以下のとおりであった。
塔跡はこの調査以前から高まりがあったと云う。
発掘調査の結果、八角形の瓦積基壇(一辺5.07m、対辺の距離12.27m、現在の高さ1.17m)を検出し、更に心礎の出土を見て塔跡であることを確認した。
基壇化粧は、平瓦を縦に半裁したものを整地面に直接に平積にする。(延石などの施設はない。)
保存の最もよい箇所で11段(高さ60cm)ある。また部分的に丸瓦も用いて積み直した部分がみら
れる。(この補修はとくに南面で顕著)。
階段は発掘調査範囲内では南面にのみあり、最下段一段が残っていた。
基壇上面は後世の削平で、礎石は遺存しない。礎石据え付け位置痕跡から、塔規模は側通柱間約2.2m、四天柱間約2.2mと推定できる。
現在の上面から下2.05mに花崗岩の心礎(東西径1.98m、厚さ1.05m)を検出した。心礎はほぼ方形をなし、各辺を粗く面取をする。中央には径84×9cmの円穴を彫る。
心礎上面には、心柱を建て、柱の根元の周囲に半焼けの瓦をくだいて多量にまぜた粘土(厚さ30cm、幅85cm)が巡る。この「根巻き」の粘土は、心礎の南側は後世の撹乱によって破壊されていたが、北半部ではよく残っていた。これの保存のため、この部分の心礎上面の調査は未実施。なお、舎利孔は上面、南・東・西の側面にはなかった。
さらに、第1次調査で、南側に基壇を持つ中門と、南面回廊及び東側・西側には築地が巡っていたことを確認した。伽藍配置は遺構の検出状況と現状の地形から、中門・塔・金堂・講堂などが一直線上に並ぶ四天王寺式であったと考えられる。
その後、1997年(第3次調査)、続けて第4次が実施された。
但し、金堂跡や講堂跡と推定される明確な遺構は検出されず、四天王寺式伽藍配置かどうかは不明とするしかないようです。(むしろ四天王寺式として完成した可能性は低いと思われる。)
山城樫原廃寺調査区配置図
山城樫原廃寺塔発掘図
山城樫原廃寺塔基壇(南より)
2011/07/19追加:
樫原廃寺遺跡全景:昭和42年
樫原廃寺史跡公園整備:昭和46年
樫原廃寺史跡公園図
2007/02/17:復原模型(1/30、昭和63年作成、京都文化博物館展示)が京都文化博物館にあり。
◆山城南春日町廃寺
昭和56年の発掘調査で塔基壇及び心礎が発掘されるも、その後埋め戻される。従って、心礎は学校グランド下に現存するも、見ることは不能。
山城南春日町廃寺
◆山城宝菩提院廃寺(願徳寺)
現在宝菩提院心礎は近くの岡崎氏邸の庭石に転用される。非公開である。
※心礎とは国民共有の文化財であり、であるならば、文化財として、現地に戻すなどの処置をして、公開が望まれる。
なお宝菩提院は木造菩薩半跏像(国宝・弘仁)を有する。
塔
跡:心礎出土地はこの付近であろう。
○「幻の塔を求めて西東」;一重円孔式:230×130×130cmの大きさで、59.5×20cmの円孔を彫る。白鳳。岡崎邸は旧寺域から東100mにある。
○「向日市史 上巻」昭和58年:明治時代に道路拡幅工事で本堂東南の釈迦堂前から塔心礎が出土する。
心礎は2.2×1.2×1.3mの大きさで、径55×30cmの円孔を彫る。また径85及び径65cmの円形柱座を持つ礎石各2個(計4個)が残るという。(いずれも岡崎氏邸)なお、釈迦堂前とは慶昌院前道路という。
山城宝菩提院塔心礎
平成12年の登窯跡発掘調査等などから、願徳寺創建は飛鳥・白鳳期とされる。縁起では持統天皇の夢告によって創建されたと伝える。平安期には願徳寺と称する。鎌倉期
、東山三条の宝菩提院が、この地願徳寺へ移されたと伝える。
中世には天台寺院として隆盛であったが、応仁の乱で焼亡する。
江戸期には寺地4町寺領17石を有したが、細々と法灯を伝える状態であったと云う。
明治維新後、更に衰微し、遂に昭和39年本堂・鐘楼などが解体され創建の地を離れ、西山大原野に移転する。
○2007/12/14追加:「奈良朝以前寺院址の研究」たなかしげひさ、白川書院, 1978.8 より
宝菩提院廃寺心礎
○「新撰京都名所圖會 巻5」昭和38年
天台宗延暦寺末、今は本堂兼用の庫裏と鐘楼があるのみ、菩薩半跏像ほか薬師如来立像(重文・藤原)も有する。
山城宝菩提院:解体・移転直前の貴重な
絵図となる。当時は「緩やかな傾斜地に立地し、竹林や松、椎、桜」で囲まれていた様が表わされる。現在は全くの住宅地と化し、当時を偲ぶものは全くないが、辛うじて「清泉」(白鳳の泉と
伝える。)の残骸が残る。
宝菩提院心礎出土位置:慶昌院北道路が出土地、塔跡写真の左石垣が慶昌院、道路が大原野道、道路右に横断歩道マーク◇が2個ありますが、その間付近から心礎が出土。
2013/10/26追加:
○「宝菩提院廃寺」高橋美久二(「向日市埋蔵文化財調査報告書 第20集 長岡京古瓦聚成」向日市教育委員会、1987 所収)より
宝菩提院付近旧地形図 宝菩提院礎石実測図
心礎は新坂街道をつくる際、現慶昌院前より出土と伝わる。
◆山城粟生光明寺
山城粟生光明寺 「粟生光明寺絵縁起」に三重塔が描かれる。
----------------------------------------------------------------------
六勝寺など洛中の主に平安期に存在した塔婆については、「京洛平安期の塔婆」
に記載。
----------------------------------------------------------------------
◆京都北村美術館四君子苑:上京区河原町今出川南一筋東入ル
飛鳥山田寺塔四天柱礎、大和中宮寺跡金堂礎石、大和大安寺礎石を所蔵と云う。
○飛鳥山田寺塔四天柱礎
現在は水鉢として転用される。大きさは不明であるが、自然石の表面に方形の柱座の台座を造り、その上に円形の柱座を造り出す。
そして、円形柱座の中央には円孔が穿たれる。さらに円形柱座の周囲には蓮華座のような彫刻が装飾として彫られる。
おそらく中央の円孔および装飾(蓮華座の彫刻)は後世それも水鉢転用時に、加工されたものと思われる。
→飛鳥山田寺
飛鳥山田寺は明治初頭には礎石もかなり残存していたとの報告もある。但し塔跡に礎石が残存していたかどうかの確証はない。
現状地中に心礎と四天柱礎のある位置付近に礎石が残る。地中に残存のため、写真でしか見ることは出来ないが、心礎には余計な装飾はなく、また礎石もかなり原形を損なうと思われるも、過剰な2重の造出や装飾の彫出があったようには見え
ない。従って、本苑にある本礎石の現状の形状が本来の姿でないことは明きらかであろう。
・Webページには以下の写真を含む数点を見つけることができる。
伝飛鳥山田寺塔四天柱礎1 伝飛鳥山田寺塔四天柱礎2
○大和中宮寺跡金堂礎石
現在は庭石として転用される。
本礎石は、明治15年、大和中宮寺旧地(俗称「御旧殿」と呼ばれる)の金堂跡の地点から発掘された3箇の礎石の中の1つと伝承する。
柱座及び地覆座を造り出す礎石である。
→大和中宮寺跡
現在大和中宮寺金堂跡基壇上に残る礎石は1個(東1列、北2列目)であるが、柱座のみを造り出す。そしてこの現地に残存する礎石が原位置であるならば、東側柱礎石
ということになるが、この現地残存礎石は柱座のみ彫り出し、地覆座の造り出しはない。
中宮寺金堂では地覆座を造り出す礎石(四君子苑)と柱座の造出のみの礎石(現地残存)とを混用したのであろうか。
・Webページには以下の写真を含む数点を見つけることができる。
伝大和中宮寺金堂礎1 伝大和中宮寺金堂礎2
○大和大安寺礎石
Webページに明瞭な写真や明確な解説が見当たらず、大安寺のどのような礎石なのかは不明。
◆山城相国寺三重塔
相国寺には次の3基の塔婆の存在が知られる。
◇鹿苑院三重塔(中世三重塔)・・・・・康暦2年(1380)創建、文正元年(1466)焼亡。
◇足利義満七重塔・・・・・・・・・・・応永6年(1399)足利義満建立落慶、文明2年(1470)雷火で焼失、高さ360尺(109m)と伝える。
◇後水尾天皇三重塔(近世三重塔)・・・承応2年(1653)後水尾天皇建立(宝塔再興)、天明8年(1788)焼失。
山城相国寺:
◆祇園感神院
祇園感神院:中世には大塔、近世には多宝塔があった。近世多宝塔は寛政年中(1789-1800)の火災で
焼失す。
◆山城誓願寺
山城誓願寺:三重塔は天明8年(1788)焼失。
◆山城妙満寺宝塔
山城妙塔山妙満寺:昭和43年の移転まで、近代の宝塔があった。
◆山城妙顕寺五重塔
山城具足山妙顕寺:五重塔は天明8年(1788)焼失。
◆山城妙蓮寺三重塔
山城卯木山妙蓮寺:三重塔は天明8年(1788)焼失。
◆山城妙覚寺多宝塔
山城具足山妙覚寺:多宝塔は天明8年(1788)焼失。 ※華芳塔(宝塔)は現存する。
◆山城本圀寺五重塔
山城大光山本圀寺:五重塔は天明8年(1788)焼失。
◆山城本能寺三重塔
山城卯木山本能寺:三重塔は天明8年(1788)焼失。
◆山城神泉苑多宝塔
山城神泉苑多宝塔:多宝塔は天明8年(1788)焼失。
◆北野天満宮多宝塔
北野天神:多宝塔は明治の神仏分離の処置で破壊。
◆京都南禅寺碧雲荘
京都碧雲荘(庭園):河内家原寺心礎及び出所
が帆船とはしない出枘式心礎がある。一般の見学不可。
◆京都南禅寺清流亭
京都清流亭(庭園):河内智識寺内塔心礎(ほぼ確実)
がある。一般の見学不可。
◆京都南禅寺真々庵
京都真々庵(庭園):出所不明出枘式心礎(出雲国分寺?)
があると云う。
出雲国分寺の礎石としても、心礎の可能性は低いであろう。一般の見学不可。
◆京都玄琢土橋邸
「亡失心礎」の「播磨殿原廃寺」の項を参照。
庭に播磨殿原廃寺心礎がある。
◆京都中京善田邸
「移転心礎」の「備中赤茂廃寺」の項を参照。
庭に備中赤茂廃寺心礎を所蔵するも、見学は拒絶する。
善田氏は玄琢土橋氏の分家と云う。土橋氏紹介ということでも、見学は頑に拒否する。数回申し出るもその都度拒否する。
◆推定東山廃東漸寺多宝塔
山城東漸寺多宝塔:推定の唯一の根拠は「東山名勝圖會」の絵図だけである。
◆山城豊国社多宝塔
○洛外洛中屏風図:
洛外洛中屏風図(池田本)豊国社部分
洛外洛中屏風図(池田本)豊国社多宝塔部分
○「久能山東照宮の創建」大河直躬(久能山叢書、巻4所収) より
豊国社では鐘楼・護摩堂は記録にあるが、本地堂は存在せず、その代わり瓦葺き・拝殿を備えた神宮寺が存在する。塔は本社には建立されず、本社廻廊外の日厳院(供僧)に多宝塔が
建立される。上記屏風絵中の多宝塔は豊国社供僧日厳院多宝塔と解される。
○2011/11/20追加:
慶長3年(1598)豊臣秀吉薨去。
秀吉は吉田神道(唯一神道)の吉田兼見とその弟神龍院梵舜によって「正一位豊国大明神」として祭祀される。
慶長4年、廟墓の西麓に豊国社社殿竣工、正遷宮祭が執行される。(正遷宮祭は以降毎年執行される。)社領1万石、境内30万坪と云う。
豊国社の構成は阿弥陀ヶ峰の廟堂(宝形造)・中門・回廊・本殿・舞殿・神宝殿・神供所・護摩堂・鐘櫓・鼓櫓などであった。豊国社参道には諸大名寄進の石灯籠が並び、祥雲寺(嫡男鶴松菩提寺)、「照高院御殿」(方広寺住職住坊)、文殊院(木食応其上人持ち)、黒田孝高、前田玄以、長束正家などの屋敷も立ち並ぶ盛観であった。
別当は吉田兼見と息子の兼治が、社僧は神龍院梵舜(兼見の弟)がその任にあたる。
慶長6年、徳川家康、関が原の敗者・長束正家の屋敷を智積院に寄進する。
慶長7年、秀吉7回忌の正遷宮祭が執行される。方広寺大仏殿が不審火で炎上する。
豊臣家滅亡後、慶長20年(1615)幕府は神号「正一位豊国大明神」の廃祀及び豊国社の破却を命じ、仏式としての墓地としてのみの存続が許される。
驚いた北政所の懇願により、豊国社の破却は免れるも、社殿は「崩れ放題」との沙汰で、放置される。
その後、外苑は取壊し、廟は暴かれ阿弥陀ヶ峯に遷される。
さらに方広寺は妙法院門跡の管理に置かれ、祥雲寺は智積院に払下げられ、前田玄以の屋敷地は文殊院に下げ渡される。
元和元年(1615)豊国社の神廟破却。材木、梵鐘、灯籠、神具なども智積院・妙法院・吉田社に下げ渡される。終には、残りの土地も妙法院門跡に下げ渡される。
そして、参道であったところに今日吉神社が妙法院の手で建立され、阿弥陀ヶ峰の廟堂への道も閉ざされる。
元和5年(1619)梵舜、神宮寺を妙法院に引渡し、神龍院へ退院。梵舜は神龍院で密かに秀吉を鎮守大明神として祀り、豊国神社再興を祈願すると云う。
かくして、豊国社参道は封鎖され、結果秀吉の墓は阿弥陀ヶ峰に封じられ、誰も知らない存在となり、明治維新を向えることとなる。
明治元年豊国社の復興が沙汰され、明治6年別格官弊社に列し、明治13年方広寺大仏殿跡地に社殿が造営される。
続いて、廟墓の再興が図られる。
廟墓は大徳寺総見院にある信長の墓が雛形にされる。但し、これは仏式の五輪塔であり、異論があるも「豊公廟ハ古例ニ依リ五輪形ヲ存シ徳川式ニ則ラズ」として五輪塔の形式で造営される。
またこれまで廟墓に至る参道は、九十九折であったが、阿弥陀ヶ峰の麓から頂の墓前正面まで一直線に石段で結ぶという大工事がなされる。
明治30年豊国会による発掘と改葬が行われ、明治31年豊国廟が竣工する。今見る豊国廟である。
2011/11/17撮影:
廟墓前石燈籠:明治31年の年紀、侯爵蜂須賀茂韶とある。
豊国廟石階1:拝殿から唐門方向を見上げ
豊国廟石階3:唐門から拝殿方向を見下げ
豊国廟唐門・石階1 豊国廟唐門・石階2 豊国廟石階3:唐門から廟墓方向を見上げ
豊国廟墓
豊国廟太閤坦1 豊国廟太閤坦2:この太閤平に古の豊国社社殿が立ち並んでいたと云
う。
なお石階は489段(563段とする記載も多くある)と云う。
今日吉権現社:明治の豊国廟墓再興により、現在の地に遷る。近世には豊国廟参道を塞ぐ形で建立されると云う。
◆参考:方廣寺
2013/08/30追加:
天正14年(1586)豊臣秀吉、大仏殿と大仏の造営を開始する。
文禄4年(1595)大仏殿はほぼ竣工、木造金漆塗坐像(高さ約19m)が奉安される。
慶長元年(1596)慶長の大地震により、開眼前の大仏は倒壊する。秀吉は慶長3年逝去。
慶長7年(1602)遺志を継いだ秀頼による銅造大仏が造作途中で、鋳物師が溶銅の漏れを起こし、大仏が融解し、大仏殿が焼失する。
慶長15年(1610)銅造大仏と大仏殿の再興に着手、慶長17年竣工する。
慶長19年(1614)梵鐘が完成するも、「方広寺鐘銘事件」の端緒となる。
寛文2年(1662)地震で大仏は小破、木造で再造されることとなる。大仏の銅は寛永通宝の鋳造に用いられたと云う。
寛政10年(1798)大仏殿に落雷、大仏殿、木造大仏など主要伽藍は灰燼に帰す。
天保年中、尾張の有志が、旧大仏を縮小した肩より上のみの木造大仏と仮殿を造り、寄進する。
昭和48年(1973年)半身の木造大仏と仮殿が深夜の出火で焼失する。
絵葉書s_minaga蔵;昭和48年焼失大仏 昭和48年焼失大仏殿:
2012/09/06撮影:何れも鐘楼(明治期の再建)内部に展示。
方廣寺大仏殿風鐸か 方廣寺大仏殿銅製花立残欠 方廣寺大仏殿鉄輪 方廣寺大仏殿遺物:用途不明
◆参考:五条大橋橋脚礎石:京都国立博物館蔵
2012/09/07追加:
本「礎石」については、出所及び由緒不明の「塔心礎」と紹介をしていた。
しかし、小冊子「京都国立博物館 庭園散策ガイド」平成21年 では、本「礎石」は豊臣秀吉架橋の五条大橋橋脚礎石との解説がある。
確かに、京都博物館西庭園には本「礎石」に並んで五条大橋の石製橋脚と石製橋桁の展示もあり、
その石製橋脚(円柱)の径と橋脚礎石の円孔の径はほぼ見合うものである。加えて、石製橋脚の先端の形状は出枘を繰り出すものであり、この橋脚先端は橋脚礎石の二段円孔の形状にほぼ合致する。因みに、展示の礎石の円穴の径は75cm、展示の橋脚の径はおよそ65〜70cmを測る。
確かに、鴨川と云ういわば中級の河川に、橋桁2間の石製橋脚を連続して建てる場合、掘立式橋脚と云う訳にもいかず、柱穴と枘孔を二段に穿った巨大な礎石を設置する必要があったと頷くことができる。そして、
現在方広寺跡に累々と残る巨石を使った石塁を見れば、秀吉の権力を持ってすれば、五条大橋で使用する橋脚・橋桁・礎石などの石材を手当・加工するなど容易なことであったと推測できる。
以上で、当初から「心礎」にしては少々表面が歪であると云う「心のひっかり」も氷解する。
さらには「幻の塔を求めて西東」に記載の「昭和7年賀茂川河畔から出土」との記事と符合する。
故に、本「礎石」は「塔心礎」ではなく、五条大橋橋脚礎石と訂正をする。
2012/09/06撮影;
京博五条大橋礎石橋脚橋桁1 京博五条大橋礎石橋脚橋桁2
京博五条大橋橋脚橋桁1 京博五条大橋橋脚橋桁2:橋桁の長さは約7.5mを測る。
京博五条大橋橋脚刻文:津国御影天正十七年五月吉日と刻む。津国とは攝津国御影
京博橋脚(石柱):後2本は五条大橋、前1本は三条大橋、三条大橋石柱には津国御影天正十七年三月吉日と刻む。
京博五条大橋橋脚先端部:出枘を造り出す。
京博五条大橋橋脚礎石1 京博五条大橋橋脚礎石2
都名所圖會五条大橋:描かれる2間の橋脚は天正期の秀吉の造営になるものであろう。
明治40年五條大橋:写る橋脚は基本的に天正期の秀吉の造営になるものであろう。
※五条大橋:
天正17年(1589)豊臣秀吉の命で、今の松原橋の位置にあった五条大橋を現在地に架け替えられる。これは方広寺大仏殿造営のための処置であった。
昭和10年の「年鴨川大洪水」にて、橋は流失すると云う。
この頃までは、江戸期に何度か再建を繰り返すも、天正期にに造作された橋の橋脚が川中に残されていたものと思われる。
その後の治水対策で鴨川の川底が掘り下げられ、橋脚は撤去されるも京都国立国立博物館の庭などに運ばれ、多くが遺存する。
橋脚の礎石は現在のところ、当館に現存する以外の情報はない。
※サイト:「池泉用水」では橋脚遺物の所在状況が解説及び写真で詳しく紹介される。
上記サイトでは以下の場所で遺物が見られると云う。
1)京都府庁の旧本館庭園:3本、明治10年の五条大橋の改修で余った石柱を移すと云う。「天正拾七年五月吉日」と刻す。
2)蹴上の国際交流会館庭園:1本か
3)鴨東運河の夷川舟溜り前:2本
4)平安神宮神苑にある石柱群:小川治兵衛作庭、五条大橋(大部分)・三条大橋(一部分)の石柱を多く利用、推定30本位。
6)京都国立博物館:石脚組立品:上記の写真の通り。
7)三条大橋西詰:これは三条大橋のものであろう。
8)三条通川端下るの散歩道:石柱が放置される。
9)五条大橋西詰の児童公園:石柱、3本+2本、なお当公園には扇塚もある。
10)京都府立植物園:石柱など
11)泉屋博古館庭園:石柱
12)京都御苑・九条池の高倉橋:橋脚8組に、旧三条・五条大橋の石柱が利用されていると云う。
13)廣誠院庭園手水鉢:石柱を加工と云う。
14)迎賓館(京都御苑内):石柱、五臓大橋の石柱1本。
その他、幡枝妙満寺境内にもある。寺町よりこれも移転させたものであろうか。
-----以下は塔心礎として認識していた以前の記事である。-----
○「幻の塔を求めて西東」:一重円孔式、313×225×69cm、径76×3/4cmの円孔、白鳳。出所不明、昭和7年賀茂川河畔から出土。
○2006/06/10追加:
京都国立博物館西の庭に「礎石」の展示がある。この展示の礎石が上記「幻の塔を求めて西東」に記載の心礎であるか否かは、以下の理由で、不明。
1)展示品の寸法が不明、2)写真で見る限り、ニ重円孔式に見える、3)写真で見る限り、石自体が心礎にしてはやや「いびつ」と思われる。
2003/10/05「X」氏撮影画像:
□京都国立博物館推定心礎1
京都国立博物館推定心礎2
京都国立博物館推定心礎3
○2006/09/22追加:2006/09/17撮影:
屋外展示・西の庭に「礎石」として展示がある。但し「礎石」とのみ表示があるだけで、由来・伝来などは全く表示がない。
(他に心礎ではない礎石が2点展示されているが、各々「礎石:本館敷地西南隅出土、当館蔵
」、「礎石:奈良市佐紀町出土、奈良時代、当館蔵」と解説がある。)
大きさはほぼ、「幻の塔を求めて西東」の法量に合致する。但し、ニ重円孔式で、記事(一重円孔式)とは一致しない。
実見する限り、この礎石は形状から、心礎であることはほぼ間違いないと思われる。しかしながら、伝承など全く不明のため、京博展示心礎とするほかはない。
□京都博物館所蔵心礎1
京博心礎2
京博心礎3
京博心礎4
京博心礎5
写真5に写っているメジャーは長さ1m。
◆六道珍皇寺
2010/10/11追加:「社寺参詣曼荼羅」(目録)大阪市立博物館、1987 より
六道珍皇寺参詣曼荼羅:.六道珍皇寺蔵
、紙本着色、207×176cm:(2010/10/11画像入替)
大門・本堂・閻魔堂・篁堂・大塔・竹林行者堂・六道迎鐘(鐘楼)などが描かれる。
何時の時代かは不明であるが、多宝塔があったものと思われる。
◆山城清閑寺
山城清閑寺:古には宝塔があった。宝塔跡には石造三重塔があると云う。
◆山城三聖寺
◇「社寺境内図資料集成 2巻」より
三聖寺伽藍図:南北朝期:東福寺蔵:中世には六角(と思われる)三重塔が存在した。
◇三聖寺愛染堂(重文)は東福寺境内に残り、堂内には本尊愛染明王を安置する小宝塔が安置される。
山城三聖寺・萬壽寺・東福寺
◆山城安祥寺多宝塔
山城安祥寺:多宝塔は明治39年火災焼失。塔基壇・礎石・石燈籠など、良くその遺構を残す。
◆山城城興寺
「洛陽33観音巡礼」平成洛陽33観音霊場会、2005年 より
永久元年(1113)関白藤原忠実、藤原道長邸宅九条殿に鎮護国家の道場として寺院を建立する。
「城興寺古伽藍図」には南大門・放生池・仁王門・金堂・講堂を南北に並べ、東に多宝塔・鐘楼、西に御影堂、北に僧坊・坊舎を並べる伽藍であったという。現在は泉湧寺派の小寺と思われる。
「京都ことこと観音めぐり」京都新聞出版センター、2006 より
城興寺はその後天台座主最雲法親王へ、さらにその弟子以仁王へと引き継がれる。以仁王は後白河天皇の第3皇子で、平家追討の令旨を発する。
◆山城伏見稲荷社
応仁の乱で稲荷山の骨皮道賢を西軍が攻め、山上山下の堂舎(社殿、本地堂、大師堂、多宝塔、文殊堂、・・・)が悉く焼失したという。御本地像、御正体、文殊像、大師像などは取出し東寺に預けたという。
○「深草 稲荷」深草稲荷保勝会、平成10年
稲荷社:応仁の兵火からの再興は多くの勧進僧・勧進沙門が活躍した。彼等は本願といわれ、元禄頃には本願所として、愛染寺が確立する。(楼門内北側に位置する。)愛染寺は神主より経済的・政治的に上位にあったとされる。
なお、愛染寺は幕末徳川家茂、一橋慶喜の伏見街道往来時の休息所として10回使用されると云う。
→ 伏見稲荷大明神が地方に勧請された例として備前澤田山恩徳寺がある。
慶応4年4月神仏判然令発令、伏見稲荷にも明治政府による神仏分離の触書が到来する。伏見稲荷社中は愛染寺舜雄に社頭にある仏堂と愛染寺内の二堂を即時取払うように指示、3ヶ月後に取払い完了と云う。
愛染寺舜雄:安政6年(1859)愛染寺住持、慶応4年(1868)還俗、愛川民部と改名と云う。(「祠官補佐表・其四」)
◆山城栢杜三重塔跡(史跡)
山城栢杜三重塔跡
◆山城勧修寺
「京洛平安期の塔婆」の勧修寺を参照。
三重塔一基の存在が知られる。
◆山城小野曼荼羅寺
「京洛平安期の塔婆」の小野曼荼羅寺を参照。多宝塔の存在が知られる。
◆山城大宅廃寺
昭和33年の発掘調査:南門(痕跡)・中門(痕跡)・金堂・講堂と推定される南北に並ぶ四棟の寺院建物跡発掘された。創建は白鳳期で、平安期に全焼、のち小規模堂舎が再建されたとされる。大宅廃寺と命名される。この廃寺は,大和興福寺の前身山階寺跡(中臣鎌足創建)、あるいはこの地の大宅氏の氏寺などに比定される。
2004年の発掘調査:南北約4mに渡り、瓦積基壇(高さ約30cm)が発見される。
基壇上には、3箇所の径約2m柱穴跡がある、塔「水煙」と推定される破片が附近から出土。
以上から、大宅廃寺は、北に講堂、西に金堂、東に塔が建つ法起寺もしくは観世音寺の伽藍配の可能性もあるとも云われる。
山城大宅廃寺水煙1 同 基壇(左図「X」氏ご提供)
出土水煙断片1 出土水煙断片2 出土水煙断片3 水煙断片4/出土瓦 水煙断片5/出土瓦
◆山城法琳寺
北小栗栖の西方の山腹にあり。この一帯のみ住宅化から取り残されて田園風景を残す。
天智天皇の代、藤原鎌足の長子・定恵が建立したと伝える。江戸期には若干の堂宇が在ったと伝えるも、早くから廃絶する。盛時には三重塔・弥勒堂・薬師堂等の伽藍があったと伝えられる。
現状、伽藍地と思われる平坦地は竹林(竹子畑)・雑木林となり往時を偲ぶものは何もない。僅かに近年建立の法琳寺跡の石柱のみがあり、それと知れるのみである。
図1 図2
2001/9/13追加:「X氏」から2001/8/30日京都新聞の関連情報を入手。以下は同記事の要約。
「古代寺院・法琳寺の遺構とみられる礎石が、同寺遺構としては初めて、伏見区小栗栖の発掘調査で検出。」 「丘陵の平坦部の試掘で、三個の礎石と、瓦などを発掘。礎石は大きさの不均一の自然石を利用し、最大で幅約1.2M。大きな二つは東西に約7メートル離れて並んでいた。また、瓦は、法隆寺で使用と同型の<複弁八葉蓮華紋>といわれる軒丸瓦などが出土した。」「孝徳天皇の願いで657年に創建。最盛期には三重塔、弥勒堂、薬師堂、太元堂を配したという。平安後期、醍醐寺・理性院の管理下に入り、江戸時代には廃寺になったとされる。」
2003/8/18追加:「山城名勝志」大島武好編、正徳元年(1711)刊より
旧記云、孝徳天皇御願、昔時堂塔4宇有り、三重塔、弥勒堂、薬師堂、斉明天皇御願定恵和尚造立・太元堂・・・、
2007/12/14追加:「奈良朝以前寺院址の研究」たなかしげひさ、白川書院, 1978.8 より
附近の幡山竹次郎は礎石と思しき巨石1個を蔵する。
◆山城御香宮塔心礎(推定紀伊寺塔心礎)
○以下「X」氏ご提供情報。(平成5,6年頃の京都新聞掲載記事)
御香宮南門を入ってすぐ左(西)に「伏見義民碑」がある。この碑の据付石が、塔心礎からの転用であろうと推定される。(古代学研究所<中京区>の江谷寛教授)
石の柱穴の大きさや周囲の出土遺物の年代などから、江谷教授は「紀伊寺の心礎」と推定する。
据付石は長径2mの自然石で、「中央に直径約80cmの柱穴があり、碑が下部を削った上ではめ込まれている」とのことであるが、現状は碑が嵌め込まれ
、さらにモルタルで固められ、「柱穴」を見ることは不能。しかし心柱の湿気を抜いたと見られる溝(一筋、幅3Cm、深さ1Cm)は明瞭に見てとれる。
紀伊寺に関しては「広隆寺来由記」などの古文書に、紀氏の氏寺とされる紀伊寺が、7世紀に建立されたとの記述があると云う。現状、紀伊寺の故地は特定
されていないが、これまでの調査で、碑の周囲をはじめ神社近辺から、飛鳥時代〜平安後期の軒丸瓦や遺構の一部などが出土していることから、この付近が
あるいは紀伊寺に比定できるのかも知れない。
なお「伏見義民碑」が建立されたのは、明治19年と云う。
山城紀伊寺心礎1 山城紀伊寺心礎2 山城紀伊寺心礎3 山城紀伊寺心礎4 山城紀伊寺心礎5
○2005/02/04:
天保義民碑のある裏側には「石塔残欠」の写真のように、その由緒・謂れは不詳であるが、石塔類残欠が廃棄物同様に放置される。
心礎実測値:大きさは約190×180cm、円穴の径は約80cm。
山城紀伊寺心礎11 山城紀伊寺心礎12 山城紀伊寺心礎13 山城紀伊寺心礎14
山城紀伊寺心礎15 山城紀伊寺心礎16 御香宮石塔残欠類
2010/11/06撮影:
山城紀伊寺心礎21 山城紀伊寺心礎22
2014/04/16撮影:
山城紀伊寺心礎23
○「山城国紀伊寺」江谷寛より:
隆城寺:「又名を紀伊寺、孝徳天皇に奉、秦川勝の弟和賀が建立、丈六釈迦牟尼仏」とある。太秦広隆寺末寺の一つとされる。:「広隆寺来由記」(「山城州葛野郡楓野大堰郷広隆寺来由記」)
以上により紀伊寺(隆城寺)の存在が知られるが、その跡は不明であるが、その紀伊寺の跡としては、現在知られている深草の7ヶ所の古代寺院址の中で、この御香宮廃寺が有力であろう。
御香宮から奈良前期及び平安後期の瓦が出土、特に今義民碑の建っている場所から多く出土する。従って義民碑に転用された心礎はこの位置もしくは付近にあったものと考え
ても不自然ではない。
山城紀伊寺心礎実測図
○2005/07/11:御香宮の神仏分離:「伏見叢書」(昭和13年)
近世には御香宮供僧(三僧)として3院<金蔵院(10石)・大善院(7石)・正徳院(8石)>があった。堂宇は本社・拝殿・湯殿・絵馬堂・御供所・東照宮・末社のほか薬師堂(2間×2間半)・護摩堂(6間×4間半)・鐘楼(1間2寸四方)などの仏堂があったと云う。
明治維新以降ノ御香宮:「御香宮ノ神宮寺タル大善院正隠(ママ)院金蔵院ハ解散ヲ命セラレ・・社僧は還俗ヲ命セラル。・・仏像は京橋大蓮寺・桃山善光寺等に送ラレ、敷地は京都府に没収、・・第7小学校ノ敷地トシテ・・・」
「都名所圖會」を観察すると、護摩堂の位置は不明であるが、拝殿手前向かって右に本地堂・鐘楼がある。薬師は拝殿向かって左にあったと思われる。金蔵院・大善院・正徳院は表門を入って右の現在桃山天満宮のある付近にあったと思われる。
参考:
2001/09/21撮影:
表 門:重文、伏見城大手門を移築したもので、元和8年(1622)徳川頼房の寄進によるものという。
表門・蟇股
拝 殿:寛永2年(1625)徳川頼宣の寄進と伝える。
拝殿正面唐破風下
拝殿正面通路左上
拝殿軒下蟇股1
同
左 2 同左 3
本 殿:重文、慶長10年()徳川家康の再建という。
本殿正面向拝 本殿西妻
2014/04/16撮影:
御香宮表門2 御香宮表門3
御香宮拝殿11 御香宮拝殿12 御香宮拝殿13 御香宮拝殿14 御香宮拝殿15 御香宮拝殿16
御香宮拝殿17 御香宮拝殿18 御香宮拝殿19 御香宮拝殿20 御香宮拝殿21 御香宮拝殿22
御香宮拝殿23 御香宮拝殿24
御香宮本殿11 御香宮本殿12 御香宮本殿13 御香宮本殿14 御香宮本殿15 御香宮本殿16
御香宮本殿17 御香宮本殿18 御香宮本殿19 御香宮本殿20 御香宮本殿21
御香宮本殿22 御香宮本殿23
○当境内に東照宮(→東照宮中の山城御香宮東照権現の項)がある。
◆山城おうせんどう廃寺(深草廃寺)
おうせんどう廃寺心礎 「亡失心礎」の「山城深草廃寺」の項を参照。
◆山城與杼姫社多宝塔
山城淀姫社:幕末頃まで、豊臣秀頼再建による多宝塔が存在していた
が、淀姫社は鴨川河川敷となる。
◆石清水八幡宮多宝塔・大塔・小塔
石清水八幡宮 ※宝塔院多宝塔(琴塔)、西谷大塔、西谷小塔、駿河三昧塔(馬場末塔・多宝塔)
◆山城足立寺塔跡(山城西山廃寺)
西山廃寺とも云う。石清水八幡宮の西南の丘上にある。廃寺跡より約100〜200m西南は河内であり、山城の国堺に位置する。現在は住宅地の中の公園に移設され、史蹟公園として整備・保存される。
(移設・復原遺構である。)
「山州名跡誌」等によれば、この地には、弥勒菩薩を本尊とする寺院と和気清麿を祭神とする神社があったと云う。
和気清麿は弓削道鏡の命で、八幡宇佐宮へ赴き、道鏡追放の神託を受け、それをそのまま復命したため、道鏡の怒りに触れ、両足切断・流刑を受けると云う。ところがその切断された両足は八幡神の加護で治癒し、その報恩のために足立寺を建立したと云う。
塔基壇は一辺10mで、塔の一辺は約5.2mを測る。塔礎石はほぼ原形をとどめる。
塔心礎はほぼ三角形であり、その各辺は約2m・2m・1.6mの大きさである。中央に直径36cm深さ18cmの円穴があり、北側には円穴に隣接して舎利孔が穿られる。これは他に類例を見ない形式の心礎である。舎利孔の大きさは長径13cm、短径10cmで
、深さは円孔と同じく18cmを測る。
心礎以外に四天柱礎2個、側柱礎10個を残す。礎石は何れも自然石を用いる。
もともとは当廃寺は昭和41〜42年に、ここから西南
50mの斜面の造成地から出土したもので、東に塔・西に堂跡を配置したものであった。この堂塔跡は現在地にそのまま移設・保存される。
なお出土品から見て、当廃寺は和気清麻呂の時代の前約100年頃に建立され、平安後期に土砂に埋もれ廃絶したものと推定されると云う。
国家神道・天皇教で賛美される清麻呂の話は別にして、現在の山城高尾神護寺の前身である清麻呂建立の神願寺は河内に建立されたとも伝え(諸説がある)、
この西山廃寺はこの清麻呂建立の神願寺の可能性が無きにしもあらずとも推測される。
また塔跡東に並んで建立されていた堂跡も移設される。
(但し堂跡は中世のもので、地層一層目に奈良期の礎石・瓦があり、その上に室町前期に構造された堂跡と云われる。基壇は一辺10m、堂は一辺8.5mの3間×3間の建築である。)
2001/09/24撮影:
山城足立寺心礎1 山城足立寺心礎2 山城足立寺心礎3
2005/01/29撮影:
足立寺復元土壇11 足立寺復元土壇12
山城足立寺心礎11 山城足立寺心礎12 山城足立寺心礎13 山城足立寺心礎14 山城足立寺心礎1
5
山城足立寺心礎16 山城足立寺心礎17 山城足立寺堂跡
2009/11/29撮影:
足立寺移設塔跡・堂跡(左が塔跡) 足立寺移設塔跡 足立寺心礎・四天柱礎
足立寺心礎1 足立寺心礎2
足立寺心礎3 足立寺心礎4 足立寺心礎5 足立寺心礎6
2013/02/23撮影:
足立寺復原土壇31 足立寺復原土壇32 足立寺復原土壇33 山城足立寺心礎34 山城足立寺心礎35
2013/10/26追加:
○「西山廃寺(足立寺)の発掘調査」江谷寛 (「同志社大学歴史資料館調査研究報告 第9集 南山城の古代寺院」同志社大学歴史資料館、2010 所収)より
西山廃寺旧地形図 西山廃寺開発前地形
西山廃寺塔跡実測図:塔一辺は5.2m(中央間2.2m、両脇間1.5m)、基壇一辺は10m、基壇は平瓦を2〜3枚積み、人頭大の石を並べて交互に積む。これは伊丹廃寺と同様の形式である。
西山廃寺塔跡遺構実測図;心礎実測図・塔跡東側瓦出土状況:出土した瓦の堆積状況より、塔は東南方向に倒れたとみられる。軒瓦は
河内枚方百済廃寺と同笵と云う。
◆山城離宮八幡宮多宝塔
大山崎(離宮八幡・寶積寺・相應寺・廃西観音寺)
◆山城相応寺塔心礎(離宮八幡宮内)
大山崎(離宮八幡・寶積寺・相應寺・廃西観音寺)
◆山城大鳳寺跡
現地には大鳳寺という寺名が伝承される。数次の発掘調査により、白鳳期創建の金堂(瓦積基壇)跡を検出。法起寺式伽藍配置が想定されると云う。現状はこの一画だけが畑地として残り、金堂跡と思われる土壇を見ることができる。塔跡付近は地上には何も残らない。
画像
◆山城浄妙寺跡
浄妙寺は、藤原道長の建立と云う(「御堂関白記」)。
この地(木幡)は歴代藤原氏の葬祭の地であり続けた。浄妙寺は道長の現世栄華と木幡に眠る一門の御霊の鎮魂と今後の一門の繁栄の祈念の象徴として建立された寺院であったと推定される。
2回の発掘調査により、三昧堂(一辺15.7m)とその東に同規模の建物跡(多宝塔・寛弘4年<1007>落慶・規模の大きさから大塔とされる)を検出。現状遺跡は小幡小学校校庭に埋め戻され、現地には案内柱のほか見るべきものは何もない。
浄妙寺跡・木幡小学校校庭 現地浄妙寺跡碑
○2003/8/18追加:「山城名勝志」大島武好編、正徳元年(1711)刊より
浄妙寺:土人云、木幡村東北山に大門跡塔壇等あり・・・・。
塔:百錬抄云、寛弘4年左大臣木幡の塔供養。本朝文スイ云、浄妙寺塔供養。日本略記新造多宝塔。
○2005/10/21追加:「木幡浄妙寺跡発掘調査報告」宇治市教育委員、1992
昭和42年の発掘で、5間四方の堂跡を発掘し、これは三昧堂基壇と判断する。
今回の発掘では三昧堂基壇東に土壇検出する。しかし、検出は一部に留まりかつ大部分が攪乱を受け、現段階では性格を明らかにすることができないが、文献の検討から多宝塔跡の可能性が高いと判断する。但し、発掘規模が小規模なことに加えて、他の堂宇の状況も明らかでなく、多宝塔跡との断定は避けるという見解
が示される。
三昧堂跡:基壇面では9ヶ所の礎石抜取穴(礎石は全て抜き取られていた)と束石(縁礎石)を8個と7ヶの抜取穴を検出。その結果などから一辺31尺の5間堂と復元される。
推定多宝塔跡土壇:三昧堂跡のすぐ東にあり、東西推定15.6mの基壇が推定される。それ以外の詳細は不明。
多宝塔跡トレンチ実測図 全トレンチ実測図
「平安時代仏教建築史の研究」:藤原道長創建。本尊:釈迦・多宝とする多宝塔の初例。
以降天台系多宝塔本尊は釈迦・多宝の二尊となっていく。これは円仁・円珍によって密教化した天台が良源・恵心僧都源信により再び顕教化することに軌を同じくするものと考えられる。
○2013/02/21追加:「院家建築の研究」:
寛弘元年(1004)藤原道長、浄妙寺三昧堂建立に着手。
寛弘4年塔の造営に着手、木幡塔供養。「権記」には「新結構多宝塔一基、其内安置釈迦多宝二如来、普賢文殊、観音勢至四菩薩像」とあり、塔は多宝塔であり、釈迦多宝二如来を安置したことが分かる。
◆山城岡本廃寺心礎
まったく知られていなかった寺院であったが、宅地開発に基づく発掘調査(昭和60年)で、法隆寺式伽藍配置の金堂(瓦積基壇)・講堂(掘建柱)・塔跡・ニ重の塀跡等が確認され、出土品から白鳳期創建、奈良時代前半に改修された寺院と判明
する。
塔跡から心礎と思われる巨石が出土するとされる。
ただし、塔跡の明確な遺構が検出された訳ではないと思われる。また心礎とされる石は自然石のようで白鳳期に自然石を心礎として使用したことには少々疑問があ
り、心礎と断定するには若干疑問であろう。
現状は小公園(塔跡)の隅に心礎が説明板とともに保存されるのみで、金堂跡などは全く住宅地に変貌する。心礎とされる石には楔跡が連続して残る。これも何時の時代なのか
不明であるが、近年のものなのであろうか。
図1:「X氏」ご提供
画像 図2 図3
2005/10/22追加:
「宇治市埋蔵文化財発掘調査概報 第10集」宇治市教育委員会、1987より
従来、岡本瓦窯跡とされていた遺跡を発掘、金堂跡と思われる瓦積基壇を発掘し、「岡本廃寺」と命名。
岡本廃寺トレンチ図:B2トレンチが金堂跡で南半分は全壊であるが、北半分より土壇及び東より瓦積基壇を発掘、上面は後世の耕作で削平され、礎石跡
の検出はできないと云う結果となる。
金堂東部瓦積基壇1 金堂東部瓦積基壇2
B1トレンチ中央下から掘立柱建物跡を発掘。桁行6間、梁間3間(切妻屋根)南北に1間の庇を持つ。講堂跡と推定。
A2トレンチから、巨石は発掘された。
A2トレンチ図:直系約2mの円形土擴内に花崗岩が埋められていた。<SX200>大きは1.9×1,1mくらいで重量は約3.3トン。このトレンチ部分は約1mほど削平されている所で、耕作土除去の後、すぐに土擴と花崗岩を発見。石は小作土表面には露出していない。
石には鏨の跡が残り、割られた表面は余り風化が認められないため、石は現状より大きな部分が恐らく近世に割られ土擴の中に埋められたものと推定される。旧状を留める部分には明瞭な加工の痕跡は認められない。
A2トレンチ1(発掘時) A2トレンチ(石を反転させた状態)
以上の状態から、A2トレンチの遺構は近世のものであるのは明瞭であるが、
1.花崗岩はこの附近には産出しないため、人為的にここまで運搬されたと思われる。
2.金堂西・金堂からの距離などから、発見地点に塔を想定しても無理はない。
3.寺院跡が耕作地となった場合、礎石は割られ、孔に捨てられることはしばしばある。
4.発掘された石はその大きさから考えて、通常の礎石ではなく、心礎と考えるのが自然であろう。
以上のような類推から、この巨石は心礎と推定された。
※恐らく心礎の残欠である可能性は高いと思われ
るが、後世の削平・開墾などで塔の存在を証明する遺物の発見が無く、また心礎と思われる加工痕跡もなく、心礎と断定するのは少々無理と思われる。(可能性が高いのも事実ではあろう。)
推定心礎残欠実測値:110×180cm高さ130cm(おおよそ)
心礎であるならば、恐らく枘孔などがあったと思われる上面が割られ、土擴に捨てられたものと推定される。
山城岡本廃寺心礎残欠1 同 2
同 3
同 4
◆山城平等院多宝塔跡
1994年平等院鳳凰堂の南東約150mの地点で、4m×2
mの範囲の石の集積を検出し、多宝塔跡と推定される。現在は鳳凰堂基壇を参考に塔婆基壇が小公園中に復元展示される。
塔基壇は小規模であり、sのため多宝塔ではなくて宝塔であった可能性もあると云う。
(現地説明板の復元図も宝塔として描く。)
文献では、康平4年(1061)多宝塔が藤原寛子によって建立。
復原多宝塔基壇1 復原多宝塔基壇2 復原多宝塔(宝塔)図
○2003/8/18追加:「山城名勝志」大島武好編、正徳元年(1711)刊より
扶桑略記云、康平4年宇治平等院の塔供養、皇后宮職寛子多宝塔1基造立、・・・・・
○2005/10/21:追加:
「宇治市埋蔵文化財発掘調査概報 第26集 平等院旧境内多宝塔推定地発掘調査概報」より:
礫の全部を検出、この礫は地業の最下層が辛うじて遺存したものと考えられる。この礫は一部後世の攪乱で一部破壊されているが、概ね5.5mの四方に収まる。また東と南に張り出しが認められる。この張り出しは階段の地業の基礎と思われる。それ故に、この礫は東と南に階段を付設する建物基壇の地業の礫と考えられる。またこの土層の出土遺物から、この層は平等院創建のものと判断される。さらにこの位置は「平等院境内古図」の建物跡描写位置にほぼ一致し、このことも建物基壇の最下層の礫との判断を裏付けるものと思われる。多少の攪乱は見られるものの、この礫の発掘状況からは、比較的小規模の正方形基壇が想定される。(平面は一辺5.5mの正方形で、階段を2方に
設け、時期は11世紀中葉)
推定多宝塔跡礫1:北西から 推定多宝塔跡礫2:北西から 推定多宝塔跡トレンチ図
この想定小規模正方形基壇の建物の推定:
平等院塔は藤原寛子(頼通娘・後冷泉皇后)建立(康平4年・1061)の多宝塔と藤原忠実(頼通曾孫)建立(長承2年・1133)の塔があるが、忠実建立塔は宇治橋南1町の本僧坊内に建立(境内最北の位置)され、また時期的にもこの遺跡の建物ではない。創建から11末頃までの存在した建築としては以下画確認できる。本堂、阿弥陀堂、法華堂、多宝塔、五大堂、不動堂などと北・西大門、経蔵、鐘楼、小御所がある。以上のうち存在しているもの、遺構が確認されたもの、近世まで存在していたもの、記録でその位置が明らかであるものを除けば、法華堂か多宝塔か
のどちらかと云う結論になる。(経蔵は鳳凰堂の南であるが、経蔵には廻廊が付設していたので除外。)
このうち、法華堂の規模は不明であるが、1間四面堂としても、今回発掘基壇は小規模であり該当しないと思われる。
「山槐記」の指図などの諸記録から、当時の伽藍は「平等院伽藍復元図」の様に復元できる。法華堂位置は該当せず、多宝塔が該当する。
近世の古絵図との照合:「平等院境内古図」乙図(最勝院蔵:江戸期)
この図の裏門通りに東西に多くの建物跡が描かれる。江戸期には多くの堂跡が残っていたと考えられ、それは浄土院所蔵の他の古図絵の照合からも確認できる。この図の「跡9」は今般の発掘調査地点にほぼ一致し、諸文献から復元できる「多宝塔」跡とほぼ照合できる
ものと思われる。
なおこの多宝塔はその推定基壇規模・形状及び文献考証から「多宝塔」ではなくて「宝塔」である可能性が高いと結論づけられる。
※参考:平等院鳳凰堂の彩色文様
2005/10/20撮影:
多宝塔復元基壇1 多宝塔復元基壇2 多宝塔復元基壇3 多宝塔復元図
○2006/12/10追加:「Y」ご提供
「山城宇治平等院古図」、最勝院蔵、絵葉書
平等院絵図は各種現存する。「山槐記」治承3年(1179)3月3日条指図:塔・経蔵などの位置が明示されている。
平等院古図は最勝院と浄土院に各々各2幅(計4幅)残る。最勝院乙図と呼ばれるものは上記のもので、甲図と呼ばれる絵図が今般のものであろう。浄土院絵図は詳細不明。
なお南方に五重塔が描画されているが、寡聞にしてその記録は不詳、また遺構も現在では全く不明。
◆山城平川廃寺(史跡)
久津川古墳群のただ中にある。白鳳期に創建され、法隆寺式伽藍配置であり、一辺17.2mを測る巨大な塔が建立される。
塔基壇長さ17.2mは現在知られている奈良期の塔基壇規模では東大寺、相模国分寺に次ぐ規模とされる。七重塔なのであろうかとも推定される。
礎石はまったく遺存せず。基壇は瓦積基壇とされる。
寺域は東西1町半、南北1町とされる。なお久世廃寺が南方約400mにある。
画 像
2003/05/07撮影:
山城平川廃寺塔土壇:金堂跡(東)から撮影、 同 金堂土壇:塔跡(西)から撮影。
同 伽藍図:現地説明板から
2006/11/23撮影:
平川廃寺塔土壇1:東側金堂跡から撮影
同 2:同左
2006/07/10追加
○「城陽の指定文化財」城陽市歴史民俗資料館、1995 より
平川廃寺塔瓦積基壇
○「かく甦える城陽の文化財」遺跡と語る会編、城陽文化を語る会発行、1996 より
平川廃寺塔跡基壇2
2013/10/26追加:
「平川廃寺発掘調査概報」(「城陽市埋蔵文化財調査報告書 第1集」城陽市教育委員会、1973 所収)より
平川廃寺塔跡発掘図:塔基壇は12.7m、塔一辺は10.5m、1間3.5mの等間。
なお、瓦積基壇の上部側面で木舞の痕跡を残す壁土が出土することから漆喰仕上げされていたと考えられる。
2013/11/17撮影:
山城平川廃寺:石碑は金堂土壇に建つ、石碑背後が塔跡
山城平川廃寺塔跡1 山城平川廃寺塔跡2 山城平川廃寺塔跡3 山城平川廃寺塔跡4 山城平川廃寺金堂跡
◆山城久世廃寺:史跡
この一帯は久津川古墳群として知られ、附近には大小多くの古墳の存在が知られる。
また古代寺院が南北に3箇所(北から広野廃寺・平川廃寺・久世廃寺)並ぶ。
廃寺は現在の久世神社境内に塔・金堂の土壇を明瞭に残し、住宅地の中この一画だけは史跡として鬱蒼とした社叢を残す。
寺院は法起寺式伽藍配置をとり、白鳳期に創建されたとされるが、沿革等はまったく不明。
調査により、塔基壇は一辺13.4m。金堂基壇は26.7m×21,3m、講堂は23.5m×13m、寺域は115m×135mと確認される。
なお礎石はまったく遺存しない。
先年の台風で金堂跡の大木が数本根こそぎ倒壊し、大量の布目瓦が姿を現す。
画像
2003/05/07:
山城久世廃寺塔土壇1:北から撮影 同 2:東北東から撮影、右は金堂土壇。
同 推定築地跡:築地跡と思われる。南門跡から法起式伽藍配置の金堂・塔の中間に向かって築地塀跡と思われる跡が約10m位認められる。古代寺院のものではなく、築地塀付近に散乱する瓦は近世のものと思われ、おそらく近世の久世神社に関係するものと思われる。
2003/11/15追加:上記の築地がある場所は久世神宮寺(若王寺)があった場所であり、築地は近世の若王寺のものであろう。
2006/11/23撮影:
山城久世廃寺塔土壇1:北から撮影
同 2:南から撮影
2008/03/25撮影:
久世廃寺塔・金堂土壇:北から撮影(向かって左は塔、右は金堂土壇)
山城久世廃寺塔土壇1:北から撮影
山城久世廃寺塔土壇2:北から撮影
山城久世神社拝殿:重文・社殿の色彩の退色が眼に付き、最近解体修理に取り
かかる。
2008/05/14撮影:
山城久世廃寺伽藍配置図:現地説明板
山城久世神社透塀:かなり破損・退色する。
※久世神社本殿は重文・室町期の遺構。 → 山城若王社(久世神社)
2012/08/26撮影:
山城久世廃寺塔土壇11 山城久世廃寺塔土壇12
山城廃若王寺跡1 山城廃若王寺跡1:何れも後方の土壇は金堂土壇
山城久世廃寺講堂跡
2013/10/26追加:
○「久世廃寺第3次発掘調査概報」(「城陽市埋蔵文化財調査報告書 第9集」城陽市教育委員会、1980 所収)より
心礎は心礎抜き取り跡から地下式と推定される。基壇一辺は13.4m、塔一辺は6.3m。
掘込地業の上縁に沿って、平瓦が立った状態で遺存する箇所がある。このことから、この基壇は瓦を立てて瓦積の地覆としたと推定される。
◆山城山瀧寺心礎
山瀧寺および山瀧寺塔心礎
◆山城普賢寺心礎
山城普賢寺
◆山城井堤寺跡(井手寺跡)
2012/08/24追加:
○「井手寺址」梅原末治(「京都府史蹟勝地調査会報告 4」大正12年 所収)では以下のように述べる。(要約)
遺跡は明治維新まで原野として遺存・原状の面影を伝えたる如きも、今より30餘年前開墾し、畑地となし、次いで水田に改変し、今や殆ど旧形を留めず、堂塔の配置など全く徴すべからざるに至れり。ただ開墾の際散在せる礎石の一部を集めて記念とせしものが遺存する。
道の南辺に一辺4間内外の芝地があり、数多くの石材を置けるが、内に4個の円形造出ある礎石が混在す。中西泰一氏談によれば、この礎石は付近にありしものを集めたと云う。
さらに、この芝地の東南約1町半の玉川に沿う崖の近くに礎石の一群がある。ここはもと天神社のありしところに南接し、田圃の一隅に約2間の方形区画を設け、周囲を石積して、その四隅に各1個の礎石を据えるものである。宮本氏の談によれば、付近にありし礎石を集めて天神社の遺跡を記念する意を遇するものと云う。
そのほか、上記の礎石群から東北約1町の小径に大型礎石が半ば埋もれて遺存する。
以上遺存する礎石は9個であるが、いずれも雲母花崗岩製である。そして形状は3種に区別される。
その一は、径2尺1寸内外の円形造出(高さは必ずしも一致せず)を設けたる単形のものである。天神社旧跡付近の4個、北方芝生上の3個がそれである。
そのニは、径2尺1寸の円径造出を設けるのは同じであるが、その上に径6寸の突起を設けるもので、北方芝生に1個遺存する。
その三は、小径に埋没するもので、これ完形を存せざるも、大形にて造出の径は3尺を越ゆべく、上辺に更に薄き造りを加えたる処、あるいは塔の中心礎石にはあらざりしかと思われる。
なお、これ等の礎石は皆火災に罹りし形跡あり。
井手寺跡礎石形状図
※礎石は9個遺存する。その所在の内訳は北方芝地(現在は井堤寺跡公園)に4個、南の天神社旧跡に4個、小径畔に1個所在する。またその種類は径2尺1寸ほどの円形造出を有するもの7個、ほぼ同じ形状・大きさで出枘の形跡があるもの1個、小径に埋没する径3尺超の造出を持つ大型礎石である。
2012/02/18撮影:
礎石保存場所
旧北方芝地(現在は井堤寺跡公園)
井堤寺跡旧北方芝地:現在は公園として整備される。
旧北方芝地石碑表 旧北方芝地石碑裏:「三宅安兵衛遺志」石碑であろう。
旧北方芝地礎石1:礎石は5個ある。さらに礎石と推定される石もあるが、礎石である確証はない。
旧北方芝地礎石2:最上部に写るのが推定礎石(確証はない)。
旧北方芝地中央礎石1 旧北方芝地中央礎石2:中央礎石は造出
があり、さらに磨耗した出枘を持つ。
旧北方芝地北側礎石:北側礎石も造出
があり、さらに磨耗した出枘を持つ。
旧北方芝地東側礎石:造出のみ
を持つ。 旧北方芝地南側礎石:造出のみ
を持つ。 旧北方芝地西側礎石:造出のみ
を持つ。
旧北方芝地推定礎石1 旧北方芝地推定礎石2 旧北方芝地推定礎石3 旧北方芝地推定礎石4
※この推定礎石は礎石と推定されるも確証はない。
この推定礎石は径約100cmを測る。下に述べるように、「完形を存せざるも」「東北約1町の小径に」遺存する「大形」礎石は現在所在が
確認できず、あるいはこの推定礎石がその「大形」礎石とも密かに推量するわけであるが、やはり無理な推量と思われる。
その推量が成り立つには、この推定礎石は後に「東北約1町の小径」から、井堤寺跡公園に運ばれ、現在の位置に据えられたことが証明
されなければならない。
また形状が礎石の形状ではなく、まして造出があるとか薄き造りがあるようには見えないので、これを「大形」礎石とするには
今在るのは2/5ほどの残欠であり、かつ表面も破壊され造出や造りが磨耗したとするしかなく、やはり無理な推量であろう。
天神社旧跡
天神社旧跡1:西から撮影 天神社旧跡2:北やや西から撮影
天神社旧跡石碑表 天神社旧跡石碑裏:昭和3年「三宅安兵衛遺志」建立とある。
天神社旧跡北東礎石 天神社旧跡北西礎石 天神社旧跡南東礎石 天神社旧跡南西礎石:礎石は何れも造出のみ持つ。
井堤寺石碑と礎石:天神社旧跡の旧写真: 2012/02/29追加、「井手町の古代・中世・近世」井手町史編集委員会、1982 より
※北方芝地には現在5個の礎石、天神社旧跡には旧来の通り4個の礎石がある。
北方芝地の礎石は全て径60cm内外の造出を持ち、内2個は出枘の痕跡を残す。従って大正12年の上記「井手寺址」の報告より、出枘を持つ礎石が1個増加している。どこからか搬入されたのであろうか。
天神社旧跡は上記「井手寺址」の報告の通りの大きさ・形状の礎石が四隅に残る。
※大正12年の報告にある「塔の中心礎石にはあらざりしかと思われる」ところの「東北約1町の小径に・・・半ば埋もれて遺存する」「造出の径は3尺を越ゆべく」「大型礎石」は現在不明である。
2012/02/29追加:
○「新撰京都名所圖會」竹村俊則、昭和40年 より
「この地(井手)は東の山中からながれ出る玉川(水無川)の・・谷口扇状地をなし、前方は木津川にのぞんで東高西低となっている。」
「奈良時代には橘氏の所領地となり、左大臣橘諸兄は天平12年(740)この地に壮麗な別業をかまえ、・・・古図によれば往時の井手の山野一帯には橘氏一族の多くの邸館が建っていたさまが描かれている。もとより後世の想像によるものであろうが・・・」
「井手寺は橘諸兄が建立した氏寺で正しくは円堤寺としるし、法号を光明寺と号した。」
○「井手町の自然と遺跡」井手町史編集委員会、1973 より
井堤寺跡についての項では、上記「井手寺址」梅原末治からの説明を(踏襲すると断わった上で)そのまま踏襲する。
従って、心礎の可能性のある「東北約1町の小径」の大型礎石の現在の有無や、大正12年の報告では「一辺4間内外の芝地」には4個の径60cm内外の造出を持つ礎石があったが現在では同様の大きさの礎石が
1個増加し5個あることについては、全く言及がない。
※残念なことである。△
○「井手町の近代Tと文化財」井手町史編集委員会、1999 より
井堤寺(円堤寺)の繁栄ぶりは「山城国井堤郷旧地全図」によって偲ぶことができる。即ち井堤寺は東西南北とも160mの規模を誇り、三重塔や金堂を中心に七堂伽藍の整った大寺であったと云う。
※三重塔というのはどの史料に基ずくのかは不明であるが、「山城国井堤郷旧地全図」に基ずくものであれば、これは錯誤であろう。
少なくとも本書(井手町史シリーズ)で参照する「全図」では、三重塔ではなく二重塔(相輪は多宝塔形式)であるからである。△
平安前期には檀林皇后(橘奈良麻呂の孫の嘉智子、嵯峨天皇皇后、井手氏公の姉)と井手右大臣氏公は鎮守梅宮を京都梅津に移し、井堤寺を神護寺と位置づける。
また、土佐市正念寺には「井手寺」の銘を持つ平安前期の鐘が伝わる。井堤寺が廃寺となり流出したものであろう。
井手寺銘梵鐘は次のサイトに掲載がある。
仁淀川財産目録書>土佐市の史跡 土佐市>土佐市の文化財
○「書籍名不明図書」井手町立図書館蔵本 より(書籍名不明なのは書名を記録せず、後に検索するも書名判明せず)
北側土壇写真:現在の状況に整備前の様子が分かる。土壇は一辺9m、高さ1m。
南側礎石写真:現状と大きな相違は認められない。
井堤寺礎石については梅原末治の報告そのままの解説がある。従って上述の「井手町の自然と遺跡」と全く同様に現状の疑問点の解消には至らない。
なお、天神社とは井堤内に橘諸兄が創建した椋本天神社のことと云う。
また、井堤寺梵鐘が土佐正念寺へ運ばれたとする説について、4つの論点から、確証がなく否定をする。
2012/02/29追加:
「山城國井堤郷旧地全圖」が流布する。これは「椿井文書」(江戸後期の知識人である椿井政隆の創作文書いわゆる偽文書)の一つである。
以下の3種の資料に絵図の掲載があるので、転載する。
「井手町の古代・中世・近世」に掲載図(模写本その1)、
「井手町の近代Tと文化財」に掲載図(明治期木下千代子模写本)、
井手町井手寺跡公園現地説明板
(模写本その3) である。
何れも、井堤寺(八角多宝塔ありか)と大光明寺(五重大塔)伽藍が描かれる。
(模写本その1)
○「井手町の古代・中世・近世」井手町史編集委員会、1982 より
山城国井堤郷旧地全図:部分1 山城国井堤郷旧地全図:全図1
(明治期木下千代子模写本)
○「井手町の近代Tと文化財」井手町史編集委員会、1999 より
山城国井堤郷旧地全図:全図2:木下千代子模写本
(模写本その3)
○井手寺跡公園現地説明板
現地説明板に「山城國井堤郷舊地全圖」の掲載がある。
山城國井堤郷舊地全圖:全図3:模写本その3
山城國井堤郷舊地全圖:部分2:井堤寺・大光明寺部分
山城國井堤郷舊地全圖:部分3:井堤寺部分
山城國井堤郷舊地全圖:部分4:大光明寺部分
山城國井堤郷舊地全圖:部分5:由来部分
→ 椿井文書「山城國井堤郷舊地全圖」の詳細・評価などは椿井文書・興福寺官務牒疏のページを参照。
◆山城泉橋寺心礎
山城泉橋寺 心礎は亡失。
◆山城高麗寺跡(史跡)
山城高麗寺跡
◆山城神雄寺跡
山城神雄寺跡
◆山城燈明寺跡
山城燈明寺 ※三重塔は三渓園に移建され現存する。
◆山城随願寺跡(山城東小田原廃寺、山城東小廃寺)
○「佛教考古学論攷」石田茂作 より
本著作に、山城東小廃寺心礎とする下記の写真の掲載がある。東小廃寺のものと推定される心礎の存在が知れる。
|
 |
山城東小廃寺心礎:左図拡大図
2011/05/29追加:
石田茂作はこの心礎を三段式塔心礎に分類する。
つまり、孔は単に枘孔ではなく、蓋受孔を持つ舎利孔がある二段式の孔と見做していると云うことである。 |
山城随願寺(東小田原廃寺・東小廃寺)については以下の論考がある。
2013/11/08追加:
○「当尾と柳生の寺々:浄瑠璃寺・岩船寺・円成寺 其他」黒田f義、関西急行鉄道、1943 より
附 東小田原寺
浄瑠璃寺と岩船寺との間に「瑞垣に囲まれた丹塗檜皮葺の春日造の小祠が二宇しんかんとして並んでゐる。境内を注意してみると平安朝から鎌倉、室町にいたる古瓦片が散布しているのを見るであろう。・・・これは東小田原寺随願寺と呼ばれた寺の廃址であるからで、神社は即ちこの寺の鎮守であったものである。今神社の西に続く台地は柿畑になっているが、この辺は殊に古瓦の散布が多い。寺の主体がこの辺にあったからである。
東小田原寺の創立:
「東小田原ハ長和二年(三條院御宇)癸丑建立云々 本願頼善、然東西両山前後前後三十五年相違也」(「浄瑠璃寺流記」)とあり、浄瑠璃寺(西小田原)に先立つ35年前に前(長和2年)に建立されたとみえている。
その後の沿革は不明であるが、「大乗院寺社雑事記」文明元年7月9日条に興福寺六方末寺として菩提院方に
「・・・西小田原 東小田原(随願寺) 成身院(中川寺) 岩船寺 忍辱山・・・」とあり、鎌倉期には興福寺末となっていたらしい。
創建の寺觀は知られないが、同じ「雑事記」明応2年12月晦日条に
「・・・本堂大日 七間五間也檜皮葺 鎮守社白山 春日 三重塔ハ崩了。湯屋於于今者可贔例也 惣坊来迎院ノ一和尚ニテハ修理致其沙汰、今坊代ニハ、来迎院サエ破損了、中院故坊主定舜之代ヨリ學衆」とある。室町期には7間5間の本堂(大日)と鎮守の他、三重塔は崩壊し、倒壊を待つばかりの状態の湯屋と少なくとも2坊があったようである。しかし、三重塔はこの頃退転していたとは云え、7間5間の本堂と塔を備えていたとは、往古は相当な寺觀があったと推測される。
降って、江戸期の景観は「春日明神文書第ニ」にて次のように知ることができる。
「山城國相楽郡/東小田原寺 随願寺/興福寺末寺/知行ハ無御座候/寺数五間/本道鎮守/寛永9年4月25日
興福寺 大川之坊 良(花押)」
つまり、江戸初期には東小田原寺は本堂と鎮守と坊舎5坊となる と。
江戸中期(享保21年)の「山城志」には記事が見えず、取上げるには値しない程、零落していたものと思われる。
土地の古老に聞けば、明治の初年までは荒れた建物が1,2宇残っていたが、やがて鎮守を残して地上から完全に姿を消す と云う。
2013/11/05加筆・修正:
○「新撰京都名所圖會 巻6」より:
跡地は岩船寺と浄瑠璃寺の中間の東小(東小田原)の春日神社付近と伝える。寺は地名により東小田原寺とも東山とも号する。
随願寺は長和2年(1013)の開創と伝え、本堂(本尊大日如来)、三重塔、湯屋等があったとされる。
中世以降漸次衰微し、明治維新で全く廃絶する。
現在の春日神社は当寺の鎮守と云われ、付近から往時の遺瓦を出土する。
○「加茂町の史蹟と文化財」加茂町教育委員会、昭和49年 より:
東小のはずれの杉木立の中に春日、白山の両社がある。この付近からは藤原、鎌倉頃の古瓦が出土するとともに、礎石も残っており、ここが東小田原随願寺の跡で、社はその鎮守であった。
浄瑠璃寺流記によれば長和2年(1013)に建立され、本尊大日如来を中心に堂塔が立ち並ぶと云う。
明応2年(1493)の記録では、本堂、三重塔、湯屋、鎮守が存在しているが、明治初年には荒れた堂宇が2,3残るも、何時しか退転する。
○現地の様子
現地では廃寺跡・春日明神に至る石階がある。もう20年以上前のことであるが、その石階の前には柵があり、「立入禁止」となってい
た。それ故廃寺跡は未見のままである。念のため、最新の石階前の写真も確認すると、石階前には鎖が渡され、「立入禁止」の札が架かる様子が写り、理由は不明ながら、今も立入不可のようである。
2013/11/05追加:2013/11/08修正:
○石田茂作氏の紹介する本心礎については、他の情報もなく、現在での存在の有無及びその所在場所は不明であった。
然るに、今般(2013/11/04)「伊勢原在住の高橋」氏のブログ「西方見聞録」>「当尾の石仏2」
中で、現地で「からすの壺」と称する石造品の写真を拝見する。そして、この石造品は石田氏の紹介する上記の「山城東小廃寺心礎」と酷似することを「発見」する。
つまり、「からすの壺」とは「山城東小田原寺心礎」ではないかと云うことであるが、その「からすの壺」とは次の写真である。
◎山城随願寺心礎:「伊勢原在住の高橋」氏のブログ「当尾の石仏2」より転載
・・・・・但し「高橋」氏のブログを含め、「からすの壺」を紹介している他のサイトでも「からすの壺」が心礎であるとの認識は全く無い。
なお、「からすの壺」とは「伊勢原在住の高橋」氏情報及び他のWebサイトの情報を総合すると以下のようである。
本石造品(随願寺心礎)は「からすの壺」と通称され、それは岩船寺と浄瑠璃寺との中間付近にあたる四辻に所在する。そしてここには、南北朝期の阿弥陀・地蔵磨崖仏がある。因みに、「からすの壺」とは礎石が「唐臼」に似ているので、そう(からうす、からうすの壺)呼ぶようである・・と。
※「からすの壺」が心礎だとすれば、おそらく、この心礎は随願寺より、この四辻に移されたのであろうと推測される。心礎を「唐臼」と譬える例は美作久米廃寺や備中関戸廃寺にあり、共通性のある「昔人の認識」と思われる。
◆2013/12/12撮影:
山城随願寺(東小田原寺)心礎(推定)/からすの壷
山城当尾東小に「からすの壷」と称する「石造物」がある。
一方石田茂作の「佛教考古学論攷」では、「山城東小廃寺心礎」とする写真の掲載がある。
即ち、戦前から、東小廃寺のものと推定される心礎の紹介が石田茂作によってなされているが、その後「この心礎」について、取り上げた資料がなく、容易にその所在を知ることができなかった。
しかし先般、Web上で、山城当尾の「からすの壷」と称する石造物の写真を拝見し、これが「山城東小廃寺心礎」であろうとほぼ確信するに至る。
心礎はほんの身近にあったのである。
そして今般「からすの壷」を実見し、塔心礎であることを確信する。
随願寺心礎の大きさはおよそ135×105cm高さは60cm内外であり、表面は平に削平される。柱座の有無については、石の質なのであろうか、表面の一部が「一皮」剥け、
見方によっては柱座があるようにも見えるが、柱座の造出は認められない。さらにこの心礎の削平された表面の中央には蓋受硬孔と舎利孔が穿たれる。舎利孔は径14cm深さ15cmを測り、その一番上部に径16cm深さ1cmほどの蓋受孔を穿つ。石質ははっきり分からないが、固い部類に属する堆積岩の一種と思われる。
なお石田茂作が本心礎を東小廃寺心礎とする根拠は不明であるが、東小廃寺には三重塔があったこと、東小廃寺の至近距離に存在することから、東小廃寺心礎とするのであろう。
ただし、心礎は蓋受孔のある舎利孔を有する古風な心礎であり、平安期の創建と伝える随願寺とは時代が合わず、別の古代寺院の心礎であるか、あるいは随願寺の前身は古代に遡る可能性もある。
山城随願寺心礎11 山城随願寺心礎12 山城随願寺心礎13 山城随願寺心礎14 山城随願寺心礎15
山城随願寺心礎16 山城随願寺心礎17 山城随願寺心礎18 山城随願寺心礎19
山城随願寺跡:現在は鎮守春日明神2棟と石階、随願寺塔のものと推定される心礎・推定礎石・推定伽藍跡平坦地を残すのみである。
下で示す写真の石階を上がれば、東に春日明神があり、西には伽藍跡と思われる平坦地がある。さらにその小高い丘の南側麓には数枚の田畑があり、おそらくは随願寺の伽藍もしくは坊舎の跡地と推定される。
山城随願寺跡石階1 山城随願寺跡石階2 随願寺跡推定礎石1 随願寺跡推定礎石2 随願寺跡推定礎石3
推定随願寺跡平坦地
随願寺鎮守春日明神:明治の復古神道によって、現在は春日神社と称するようであるが、本来は、随願寺鎮守であり、神殿が2棟あるので、付近の山城岩船寺、大和圓成寺と同様に、春日明神と白山権現社であろう。ただし、どちらが春日明神でどちらが白山権現であるのかは、資料がなく分からない。
また建築年代も資料がなく、分からないが、桃山〜江戸初期の建築と推定される。
鎮守春日明神11 鎮守春日明神12 鎮守春日明神13 鎮守春日明神14 鎮守春日明神15
鎮守春日明神16 鎮守春日明神17 鎮守春日明神18 鎮守春日明神19 鎮守春日明神20
参考:当尾の石仏など
西小たかの坊地蔵:地蔵および多くの小石仏と宝篋印塔などがある。これらは南北朝期のものと云う。
たかの坊地蔵1 たかの坊地蔵2
西小長尾共同墓地五輪塔2基:典型的な鎌倉期の作風を示す。墓地には室町期の年紀を持つ古い墓石もあると云う。
長尾共同墓地墓石群 長尾五輪塔(左) 長尾五輪塔(右)
西小長尾阿弥陀磨崖仏:徳治2年(1373)僧行乗の造立。四注造の屋根を架する。
長尾阿弥陀磨崖仏1 長尾阿弥陀磨崖仏2
東小藪の中地蔵・観音磨崖仏:いずれも鎌倉期。地蔵像左に「東小田原西谷浄土院、弘長2年(1262)・・・」と刻む。当地方での最も古い年号であると云う。また東小田原寺西谷浄土院の存在が知られ、少なくとも鎌倉期には東小田原寺は一定の寺勢があったものと思われる。
藪の中地蔵・観音像 藪の中観音像
東小阿弥陀・地蔵磨崖仏:カラスの壷にある。両体とも康永2年(1343)の銘があると云う。阿弥陀仏の左には灯篭が線刻され、
火袋には灯明を供えることが可能である。
からすの壷阿弥陀像1 からすの壷阿弥陀像2
からすの壷地蔵尊
岩船阿弥陀三尊磨崖仏:永仁7年(1299)末行の造立銘がある。岩船寺住僧が願主と刻むと云う。
阿弥陀三尊像1 阿弥陀三尊像2
岩船不動明王磨崖仏;弘安10年(1287)造立銘があると云う。
岩船不動明王像1 岩船不動明王像2
以上の他にも多数の磨崖仏などが」あるが、今般は未訪問。◆山城笠置寺
建久4年(1193)貞慶、興福寺から笠置山に隠棲、それ以降中世前期に笠置寺は大いに栄える。
※貞慶:久寿2年(1155)−建暦3年(1213)、解脱上人、笠置寺上人。藤原氏、法相宗の僧。
建久5年(1194)般若台(大般若経安置の六角堂)堂建立。
建久7年(1196)俊乗房重源、梵鐘(現存)や宋版大般若経を施入。
建久9年(1198)木造十三重塔建立、解脱上人発願、源頼朝建立と云われる。
元久元年(1204)源頼朝、弥勒磨崖仏礼堂再興費として砂金を寄進。
元弘元年(1331)後醍醐天皇、笠置山に篭城、笠置山落城の折、十三重塔を始め伽藍炎上。
鎌倉後期には、十三重塔跡地に石造十三重塔(重文)が建立される。
その他、次の什宝が残る。
笠置寺本尊弥勒磨崖仏:高さ15m、再三の戦火で線刻弥勒菩薩は消滅、後背のみ残存、奈良期。
虚空蔵磨崖仏:高さ10m、線刻、平安後期。
2006/11/10追加:
開創絵巻物:笠置寺什宝、天平勝宝3年実忠和尚笠置山正月堂に観音ノ修法の図、絵葉書:「Y」氏ご提供:これは笠置寺絵縁起の場面で、当時は三重塔があったと思われる。
笠置寺絵縁起1(上記と同一の絵図)
笠置寺絵縁起2:元弘の変の場面と推定。塔が描画される。
2007/09/02追加:
「笠置曼荼羅図」(重文):大和文華館蔵
この曼荼羅図に十三重塔と弥勒磨崖仏とが描かれる。
「笠置山及附近写真帖」田中市之助編、東京:東陽堂、明42年 より
笠置山弥勒石薬師石十三重塔
参考:
文献上、木造十三重塔は以下の寺院にあったことが知られる。
山城笠置寺・南都興福寺四恩院・鎌倉極楽寺・山城高山寺・大和長谷寺・大和菩提山正暦寺・備前八塔寺
2006年以前作成:2014/10/30更新:ホームページ、日本の塔婆
|